Archivo del blog

martes, 28 de enero de 2025

Capítulo 32-2, Románico del Baix Empordà- San Miguel de Cruïlles, Sant Feliu de Guixols, Igelis de Sant Pau de Fontclara, Iglesia de Sant Pere de Villastret, San Joan de Bellcaire

 

El románico del Baix Empordà
La arquitectura románica del Baix Empordà no puede decirse que difiera mucho en cuanto a sus características de la que puede admirarse en comarcas colindantes como el Ripollés, la Garrotxa o el propio Alt Empordà. Si acaso, y quizás por la ausencia de fundaciones monásticas señeras y poderosas que pudieran ejercer un influjo político y cultural sobre ellas, las iglesias románicas del Baix Empordà -la mayoría de ellas desde temprana fecha bajo dominio del cabildo episcopal gerundense- se caracterizarán por su enorme sencillez constructiva y sus escasas concesiones a la escultura monumental, limitándose la mayoría de ellas a las consabidas fórmulas decorativas lombardas, tan recurrentes en todo el territorio catalán.
Si que resulta llamativo en toda la comarca el primitivismo que acusan varios de sus edificios religiosos, originarios de época prerrománica donde el arco de herradura no es para nada una "rara avis".
En cuanto a la pintura y a diferencia de otros territorios catalanes, apenas se han conservado programas completos, pudiendo concluirse a juzgar por los escasos vestigios llegados a nuestros días, que en ningún caso intervinieron en ellos maestros de primer nivel. En todo caso es destacable el caso de Sant Pau de Fontclara. 

Cruïlles, Monells i Sant Sadurní de l’Heura
El municipio de Cruïlles, Monells i Sant Sadurní de l'Heura, se formó en 1973 mediante la unión de los tres pueblos que le dan nombre; se eligió Sant Sadurní como cabeza del municipio. Ocupa una extensión de unos 100 km cuadrados en el sector septentrional del macizo de las Gavarres, que comprende una buena parte del valle alto del Daró y del valle del Rissec, afluente por la izquierda del Daró.
La comunicación se realiza por la carretera local Cl-664, que atraviesa el singular paraje de las Gavarres por el collado de Santa Pellaia y discurre paralela al curso del Daró en un largo tramo. La carretera local CIV-6701 pasa por el pueblo de Monells, y varios caminos asfaltados completan la comunicación del territorio.
Al tratarse de tres municipios anexionados, resulta complicado tratar la documentación histórica que, no obstante, se tratará en los apartados particulares de cada monumento. Destacamos que el lugar de Cruïlles ya se cita en el año 891, y su iglesia en el 1035. Del monasterio benedictino de Sant Miquel de Crui'lles se tienen noticias desde el año 1057. De Monells sabemos que en 922 el rey Carlos el Simple confirmó a la catedral de Girona las propiedades que allí poseía.

Sant Miquel de Cruïlles
Los restos del monasterio benedictino de Sant Miguel de Cruïlles se hallan en la comarca del Baix Empordà (Girona), a 31 km de distancia de la capital de la provincia. Administrativamente, pertenece al municipio de Cruilles, Monells y Sant Sadurní de l'Heura. Los accesos al mismo se realizan por la carretera de Cassà de la Selva hasta llegar a la localidad de la bisbal d'Empordá, de la Que dista cuatro kilómetros por la carretera Cl-664.
Las noticias más antiguas del mismo podrían datar de comienzos del siglo X, cuando el obispo de Girona acudió a consagrar varias iglesias en el año 904, entre las Que se hallaba la de Sancti Michaelis Arcangeli. Si no todos los investigadores comparten que esta referencia sea al monasterio, ya en 1035 un tal Gilabert, al que se hace miembro de la casa familiar de Cruilles, realizó una donación al cenobio, a la que siguieron otras de varios integrantes del mismo linaje, que pasan por tanto a convertirse en los protectores y quizás fundadores del mismo.
El monasterio se mantuvo como tal hasta 1485, fecha en que fue saqueado durante la guerra de los Remensas, prologándose en una agonía institucional que finalizaría en 1592, cuando pasó a convertirse en priorato de Sant Pere de Calligans. Reducido a cementerio parroquial de la población vecina desde el siglo XVIII, en los años treinta del siglo XX la historiografía se interesó por el mismo. La razón fue que en 1930 se procedió a desmontar y restaurar el retablo gótico que ocupaba el altar mayor de la iglesia, momento en que se encontraron otros elementos medievales, como parte de la pintura mural y la viga medievales que habían sido tapadas por el mobiliario y usadas en la mazonería del retablo, respectivamente. En su trabajo sobre las pinturas del ábside, J. Folch i Torres relataba cómo el restaurador Joan Sutrá le había comunicado el hallazgo de las mismas durante el desmontaje del retablo gótico, cuya restauración había sido encargada por el obispo gerundense Josep Vila Martínez. A la par que se descubrieron las pinturas, en una de las ventanas del ábside también se halló una reja románica, caracterizada por un simple trazado que la emparentaba formalmente con otra de Sant Joan de les Abadesses. Por otra parte, en el Museu Can Ferrat de Sitges y en el Episcopal de Vic se conservan algunos fragmentos de espirales de hierro que se han relacionado con otra reja de Cruilles, ahora desaparecida.
En el mismo año de 1931, los bienes de la iglesia, tanto los conservados hasta la fecha como los casualmente hallados durante la intervención, fueron trasladados a Girona, depositándose en la colección diocesana que finalmente conformó el actual Museu d'Art en 1979. En contra de la costumbre generalizada en las primeras décadas del siglo XX, los fragmentos de pintura mural aparecidos en la capilla mayor y en el transepto norte no se arrancaron para ser trasladados a ningún museo, sino que quedaron in situ. Desde 2006 el monasterio es gestionado desde el Consell Comarcal del Baix Empordá, habiéndose realizado distintos trabajos de restauración en el mismo, entre los que destacan las catas sobre el encalado de la nave que han sacado a la luz una destacada superficie de pintura mural medieval de carácter ornamental, las excavaciones arqueológicas de la iglesia, aún pendientes de publicación, o la consolidación y protección de los restos del derruido tramo occidental del templo.

Arquitectura
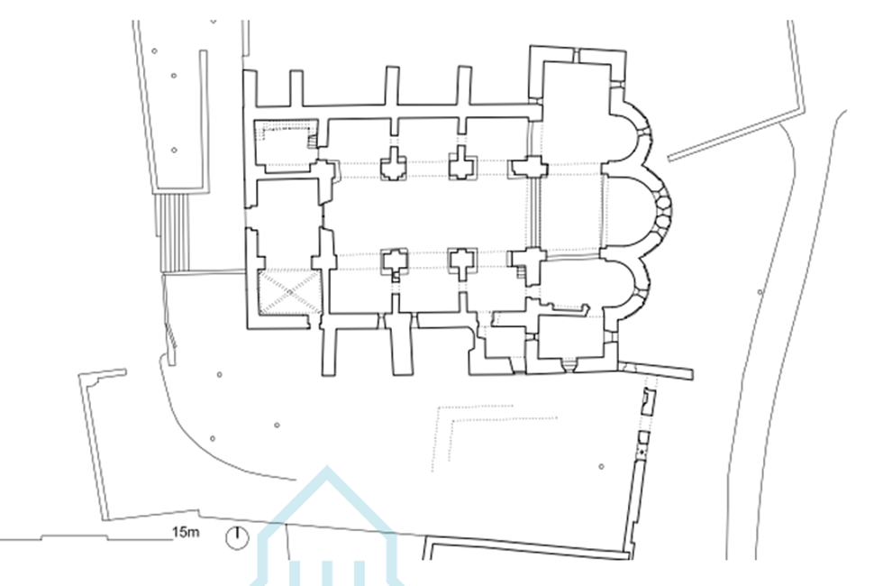
Del conjunto monástico se conservan la iglesia y, junto a su fachada meridional, parte de los muros perimetrales este y sur del claustro, con la puerta y ventanas dobles de la sala capitular, abiertas en el primero de éstos a continuación del muro del templo.
Éste es un edificio de tres naves y cabecera de tres ábsides semicirculares abiertos a un gran transepto sobresaliente en planta y altura. Los muros son de sillarejo a excepción de los arcos, soportes y otros elementos sustentantes realizados en sillar bien escuadrado. De la fachada occidental sólo quedan restos de un presumible proyecto de fachada bitorreada con la torre norte muy alterada en fechas modernas, que habría enmarcado el espacio que debió ocupar el primer tramo de la iglesia o la posible galilea, en consonancia con los restantes monasterios benedictinos del entorno geográfico y cronológico.




El acceso se realizaba a través del arco de medio punto hoy conservado, sin que tengamos constancia de una portada con tímpano, capiteles u otros elementos esculpidos. Los muros de la supuesta galilea hoy están desgajados de la propia iglesia, a la que se accede mediante un vano adintelado de época moderna, abierto sobre la superficie tapiada del arco que separaba el primer y segundo tramo de la iglesia. En época moderna se produjo el derrumbe de este primer tramo. Contra lo que sería previsible, no se llevó a cabo su reconstrucción y sí su definitiva separación, mediante el cierre del segundo tramo y la instalación de la puerta adintelada que hoy da paso al templo desde occidente. Si todo el exterior de la iglesia se caracteriza por la ausencia de decoración arquitectónica, sólo los paramentos de los tres ábsides de la cabecera se articularon mediante arcuaciones y lesenas, siguiendo los patrones estilísticos de la arquitectura catalana del siglo XI.


Hacia el interior, las tres naves se organizan mediante cuatro tramos de bóveda de cañón que desembocan en el transepto.
Los soportes del intercolumnio son cruciformes correspondiéndose con los Sajones que marcan los cuatro tramos de las bóvedas correspondientes con el cuerpo de naves, carentes de decoración en las cornisas que hacen las veces de capiteles e impostas. El tramo de crucero está abierto a un cimborrio con interior cupuliforme sobre pechinas y que hacia el exterior se proyecta en un cuerpo circular, rematado por una torreta.

Respecto a las tres capillas de la cabecera, la central está compuesta por un reducidísimo tramo recto y el hemiciclo correspondiente, en tanto que las laterales tienen acceso directo desde el transepto al espacio absidal. En los tres casos se abovedaron mediante cuartos de cañón El ábside central se ilumina mediante tres ventanas, en tanto que los dos laterales lo hacen con una. Frente al muro occidental del transepto sur se elevan los restos de lo que debió ser una torre, quizás dedicada a las campanas de la clausura monástica y como husillo para acceder a las cubiertas.
Nada ha quedado de instalaciones litúrgicas ni de otros posibles vestigios materiales del pasado monástico de la iglesia. Respecto a las remodelaciones modernas, la torre de la fachada occidental fue recrecida en dos ocasiones mediante materiales diferentes, con el visible cuerpo de campanas de función parroquial. Mientras, el interior de las naves laterales fue compartimentado mediante muros correspondientes con cada tramo de bóveda, creando posibles capillas de funcionalidad incierta. En un momento indeterminado de su historia y quizás en paralelo con el derrumbe del primer tramo de la iglesia, el edificio debió sufrir algún tipo de problemas estructurales que llevaron a construir una serie de grandes contrafuertes que se adosaron a sus fachadas norte y sur, en el segundo caso invadiendo la superficie de la correspondiente galería claustral.

Respecto al claustro, debió tratarse de una superficie cuadrangular irregular, claramente desplazada al Este en relación al transepto de la iglesia, a tenor de los restos de sus muros perimetrales. En planta, debió conformar un ámbito trapezoidal marcado por el brazo meridional del transepto, con el que hacen ángulo los restos murarios de la galería este. Como indicábamos al comienzo, en ésta sólo nos resta el muro occidental de la sala capitular, abierto hacia donde originalmente debió ubicarse la panda y arquerías claustrales. Siguiendo la tradición de este tipo de oficinas, el capítulo se abría mediante una puerta central y dos vanos laterales, en este caso geminados y en arco de medio punto doblado sobre una columna con capitel de corte geométrico.
El vano norte fue alterado parece que a posteriori, quedando reducido a una sola ventana con la apertura de una puerta entre el brazo de transepto y la propia sala capitular. La proyección volumétrica del capítulo debía ser la de una sala cuadrangular, quizás cubierta por una techumbre de madera sobre la que, a su vez, se habría dispuesto el dormitorio de la comunidad. Situado en altura sobre la superficie del muro sur del transepto, dando a la correspondiente y desaparecida galería, se conserva un sepulcro osario, muestra de la importancia que el claustro del monasterio debió tener como espacio funerario de prestigio para la propia comunidad y para los protectores y vecinos del mismo.
Tocante a la datación de todo el conjunto arquitectónico hoy conservado, cabría considerar una diferencia cronológica en la construcción de claustro e iglesia, fácilmente deducible de la falta de coordinación entre la obra del transepto meridional del templo y el desarrollo del muro del apanda este. De este modo, podríamos situar las obras tanto de la iglesia como del claustro a lo largo del siglo XI, aunque sólo una excavación arqueológica de la superficie claustral nos aportaría claves para interpretar los problemas topográficos de adecuación entre las diferentes partes del conjunto y su repercusión sobre una datación cronológica más precisa.

Pintura mural
En fotografías anteriores a 1930 todavía puede verse el retablo gótico dispuesto al fondo de la capilla mayor de la iglesia del monasterio, y rodeado a ambos lados por una suerte de entelado pictórico que cubría las paredes laterales del ábside. La bóveda de horno fue cubierta por una decoración moderna de casetones en perspectiva con ángeles en su zona inferior. La eliminación del retablo condujo al hallazgo de restos de pintura bajo su superficie, en tanto que la pintura de los siglos XVI y XVII que lo enmarcaba quedó como huella de la instalación litúrgica que ocupó el presbiterio de la iglesia en época moderna. Centrándonos en el conjunto de pintura mural medieval de Sant Miguel de Cruilles, se divide en dos grupos claramente diferenciados: el datado a mediados del siglo XII y que forma parte de la pintura mural catalana de influencia francesa, y un segundo fragmento ornamental descubierto en fechas recientes y que se data a comienzos del siglo XIII.
La pintura está distribuida entre cuatro zonas diferentes de la iglesia, factor que indudablemente nos conduce a reconsiderar el interior de esta última como un espacio en su mayor parte cubierto por ciclos pictóricos. Comenzando por el grupo de pintura de mediados del XII, el fragmento más importante es el que puede contemplarse en el muro septentrional del transepto norte. Aquí podemos ver a cuatro personajes masculinos en pie sobre una línea de campo en las que se pueden leer algunas letras de un epígrafe sin una clara identificación: IGNUM ECC... Bajo ésta, hay bandas ornamentales y los inicios de la decoración de cortinajes que debía ocupar las zonas bajas de la superficie pintada de la iglesia. De los cuatro personajes, tres se sitúan mirando hacia la derecha en tanto que el cuarto se posiciona en sentido contrario, dirigiéndose hacia uno de los anteriores con la mano levantada a la altura del pecho. Todos están nimbados, van descalzos y visten túnicas de color blanco y mantos de tonos terrizos. Respecto a su interpretación iconográfica, Joan Sureda propuso que pudiera tratarse de un Apostolado, en tanto que Francesc-Xavier Mingorance ha matizado que se hubiera pintado la traición de Judas, propuesta que se asentaría en el paralelismo formal con la misma escena representada en la Biblia de Ripoll, el sistema compositivo con la proximidad física entre los dos personajes enfrentados y en la posible relectura del epígrafe inferior como SIGNUM EIS, que podría hacerlo formar parte de un versículo del Evangelio de Mateo referente a la traición de judas: Dederat autem traditor eius signum eis dicens: “Quemcumque osculatus fuero, ipse est; tenete eum et ducite cante” (Mt, 14, 44) Por último, Gloria Fernández recoge la lectura anterior del epígrafe para completar las dos palabras como (S) ICNUM ECC(LESIA), aunque destacando también su carencia de un contexto literario que, por lo tanto, pudiera ofrecer nos una lectura iconográfica más detallada en relación a los personajes representados arriba.
Desde una perspectiva estilística, este fragmento pictórico ha sido puesto en relación con el llamado círculo de Osormort, representante de una popularización en la Península de los modos y maneras de pintar que se realizaron en el Poitou, en paralelo a la otra entrada de dicha corriente estilística en Aragón, a través de las pinturas de la iglesia baja de San Juan de la Pena —las de mayor calidad y primacía cronológica— y las del completo ciclo de la iglesia de los Santos Julián y Basilisa de Bagüés, en Zaragoza. El definido como “círculo de Osormort”, a partir de las pinturas descubiertas en la parroquia de Sant Sadurní d'Osormort en la comarca de Osona (Barcelona), está integrado por distintas pinturas catalanas de un mismo contexto geográfico y cronológico entre las que cabría destacar las de Bellcaire, Maranyà, el Brull o la propia Osormort. Con todas ellas Crui'lles comparte la concepción anatómica de los personajes, con un canon muy alargado, basado en la marcada longitud de las piernas, los ojos grandes con el párpado inferior más oscuro, las cejas marcadas y unidas al nacimiento de la nariz y las mejillas sonrosadas. El tipo de vestimenta es el mismo que puede verse en los Apóstoles pintados en Osormort, Bellcaire o Maranyà. De hecho, todas estas cuestiones son compartidas en dos de los ciclos del conjunto, Sant Sadurní de Osormort y Sant Joan de Bellcaire, especialmente en lo referente a la resolución de rasgos faciales y a las vestimentas largas. Estas cuestiones han llevado a plantear la posibilidad de que nos habláramos ante un subgrupo formal dentro de la pintura catalana de influencia francesa y, por tanto, posiblemente vinculadas a un mismo taller.
Volviendo a Crui'lles y siguiendo esta misma adscripción estilística, contamos con los otros dos fragmentos pictóricos románicos situados en el ábside principal de la iglesia.
Como veíamos líneas atrás, a ambos lados de la superficie que ocupó el retablo gótico y en el cascarón de la bóveda, en época moderna se realizaron unas pinturas de cortinajes y casetones que presumiblemente eliminaron la pintura previa. Por el contrario, tras el retablo y en la franja vertical que ocupó se ubican los restos que nos interesan. El primero está en la enjuta entre los arcos de las ventanas de la izquierda y central, en el conjunto de tres que iluminan la capilla mayor, siguiendo un sistema representativo y una paleta cromática semejante a la de los personajes del transepto sur y que, por lo tanto, la situarían en la misma esfera cronológica y en bajo la autoría del mismo obrador. En el derrame de la ventana izquierda aparecen dos bandas de pintura azul y terriza separadas por una sarta de bolas, en tanto que hacia el interior se figuraron roleos de color rojo teja sobre un fondo blanco, a la manera de las ventanas del ábside de Sant Martí del Brull (Museu Episcopal de Vic), pudiendo aún verse hacia la clave del arco una especie de clípeo o mandorla con el fondo azul y algunas figuraciones incompletas entre las que quizás se hubiera figurado la paloma o la Western Domini. A la izquierda, encima de la enjuta de los arcos aparecen los pies de y el bajo de la túnica de una figura, recortados sobre un fondo de tierra, en la línea de los personajes situados en los ábsides de Sant Sadurní de Osormort y Sant Martí del Brull. Por debajo del personaje, aparece el fragmento de una inscripción con el texto ..RA REGNAT SEMPER VIRGINEIS LA. Tanto por la localización del personaje en la parte más baja de la cuenca absidal, como por el texto del epígrafe, se ha planteado que en esta zona debió situarse una Maiestas Mariae.
El tercer sector de decoración vinculado a las pinturas datadas a mediados del siglo XII son los leones que cubren el registro inferior del ábside. Siguiendo la costumbre de representar cortinajes y elementos decorativos semejantes en la zona baja de los muros, en el ábside de Cruilles se situó una suerte de gran entelado con figuras de leones afrontados. hoy se trata de la silueta de los animales recortada sobre una superficie cromática de rojo-teja, siguiendo la paleta cromática de las pinturas descritas.
Distribuidos en seis parejas ordenadas en dos registros de tres cada uno, los leones ocupan la superficie inmediatamente inferior a las ventanas y, por lo tanto, correspondiente con el área del paramento protegida por el retablo gótico. Como ya señaló Folch i Torres, los leones de Cruilles indudablemente se inspiraron en telas orientales que participaban de los mismos motivos, cubriendo por completo toda la superficie inferior del tambor absidal. También hay una cuestión especialmente interesante sobre su factura y es que fueron realizados mediante una plantilla que permitía calcar su forma y repetirlos de forma idéntica por toda la superficie pictórica, tal y como hoy podemos verlas.
El último panel pictórico descubierto parece tener una cronología algo posterior al grupo de tres fragmentos que acabamos de describir. En 2008, y con motivo de las obras de restauración del edificio llevadas a cabo desde el Consell Comarcal del Baix Empordá, se realizaron diversas catas sobre el encalado que cubre las bóvedas y enjutas del intercolumnio norte, hacia la nave central. En el segundo tramo aparecieron varios restos de pintura que aconsejaron la limpieza de la zona, sacándose a la luz un conjunto de superficie pictórica imitando sillares cubiertos por mármoles de distintas tonalidades, que ocultaron el sillarejo de la fábrica original haciéndolo más llamativo y, sobre todo, dignificando y unificando las superficies carentes de decoración figurativa. A día de hoy, desconocemos si las todavía encaladas bóvedas de la iglesia pudieran esconder pinturas como las de Sant Esteve de Canapost o Sant Tomás de Fluviá, del mismo modo a como el resto del intercolumnio que, presumiblemente, también estuvo cubierto por pintura como la descrita, descubierta en la última restauración.

La viga de Cruïlles
Hoy conservada en el Museu d'Art de Girona, la viga de Cruilles es el más interesante testimonio del mobiliario, en este caso pintado, que vistió la iglesia del monasterio. Al desmontarse el retablo gótico que ocupaba el fondo del ábside, se pudo constatar que entre las vigas traveseras a las que estaba clavado, la que se correspondía con el enlace entre el banco del retablo y su cuerpo superior guardaba restos de policromía. Al limpiarla se comprobó que era una pieza importante, decorada con pinturas y de más de cuatro metros de largo, catorce centímetros de alto y diez de ancho. Dos de sus caras muestran decoración vegetal sobre un fondo neutro mientras la tercera presenta la imagen de una gran procesión encabezada por la comunidad monástica antecediendo a un dignatario eclesiástico que sale de una iglesia, enmarcado por la puerta de ésta y dos ministros que sostienen el gremial que le precede. El hecho de que sólo estuvieran tratadas con pintura tres de las caras de la viga, mientras la cuarta quedaba libre, hizo proponer a Sutrá que la pieza pudo haber formado parte de la estructura del presumible ciborio del monasterio o de la viga del arco triunfal, de la que colgaran los cortinajes de la capilla mayor.
La verdad es que no sabemos de qué pieza del mobiliario de la iglesia formó parte, pudiendo también haber sido un fragmento del coro, de los Sedilia del presbiterio, de la embocadura de una capilla o de cualquier otro lugar. En cualquier caso, a pesar de tratarse de un fragmento fuera de contexto e incompleto, varios de los elementos que integran la representación que cubre su cara pintada con imágenes nos permitirán dilucidar el asunto figurado en la misma. Tocante a su cronología, la viga y su pintura se han datado entre finales del siglo XII, comienzos del XIII e, incluso, alrededor de 1300, en consonancia con el problema de valoración estilística de una pieza que pudo ser arcaizante y, por lo tanto, realizarse en fechas tardías.
Como veremos, la aparición del pannisellus en el báculo —en uso a partir del siglo XIII— nos lleva a situar la pintura de la viga en un posible entorno alrededor de 1 200, junto a otro tipo de piezas semejantes de difícil datación debido a su clara indefinición estilística, como la viga de la Pasión, hoy en el Museu Nacional d'Art de Catalunya.
Pasando a analizar la escena representada en la viga de Cruilles, el conjunto de personajes que integran la procesión está divido en cuatro grupos. El primero se halla compuesto por cinco ministros que abren el cortejo cubiertos con casullas de distintos colores sobre los presumibles hábitos. En el segundo grupo discurre el grueso de la comunidad monástica, con dieciocho monjes, podemos suponer que desfilando en parejas y portando capas pluviales sobre las albas. En tercer lugar, otros cuatro religiosos que vuelven a vestir con casullas como el primer grupo y, cerrando el desfile litúrgico, el alto dignatario y sus dos acólitos. Lo que más llama la atención es, por un lado, el detalle de las vestimentas litúrgicas: casullas, hábitos, albas y capas en los que el pintor se empleó especialmente distinguiendo el color y señalando la riqueza de las mismas, mediante juegos de pliegues y elementos geométricos que parecen indicarnos que se trata de ricos paños bordados. Y por otra parte, destaca el detallado orden de la procesión.
Siguiendo el estipulado orden de los desfiles litúrgicos, la encabezan dos ceroferarios, un turiferario y, con las manos veladas por sus propias estolas, los diáconos portadores del Libro y de la cruz. Es el mismo orden que vuelve a repetirse en los integrantes del tercer grupo, faltando ahora el portador de la cruz De hecho, se ha llegado a indicar que la cruz sacada en procesión en el primer grupo pudiera tratarse de un relicario de la Veracruz, aunque debamos indicar aquí que ocupa su orden lógico en la comitiva en tanto que elemento procesional portado por el cruciferario.

En el segundo grupo, sólo el quinto personaje lleva un recipiente en la mano derecha que, quizás, pudiera ser el acetre con el agua bendita en tanto que, en la otra mano, la que no vemos, podría mostrar el aspersorio o hisopo. Por otra parte, la pieza figurada muy posiblemente se trate en realidad de una patena y es que el religioso debe ser el portador del cáliz y la patena que, según el Ordo V romano, debían llevarse en las manos izquierda y derecha, respectivamente.
Por último, cabe destacar también la marcada gestualidad de los personajes, con las bocas abiertas en un claro ademán de elevar el canto durante la procesión, asunto al que volveremos al final de este apartado, y que incide en una de las características de la representación en la viga y que no es otra que la sinestesia litúrgica que se desprende de la imagen.
Tocante al último grupo, el del dignatario eclesiástico precedido a ambos lados por los dos portadores del gremial, nos interesa que porte el báculo en tau del que pende el pannisellus y el propio gremial, en claro símbolo de su jerarquía.
De hecho, de ambos atributos podemos deducir que se trata de un obispo o, quizás, un abad en un acto litúrgico señalado y que obligaba a portar toda la indumentaria de las festividades más importantes. El pannisellus era un paño (pannus) triangular que, a modo de vexilla o bandera, se comenzó a atar al nudo de los báculos de obispos y algunos abades desde el siglo XIII, llegando a convertirse en piezas bordadas lujosas. Mientras, el gremial era el tejido rectangular de lino o seda y del mismo color litúrgico de la época del año correspondiente al acto en el que fuera utilizado, con el que los prelados se cubrían las rodillas cuando iban con vestidos de pontifical completo. En las procesiones, el gremial era transportado por dos acólitos que, situados a ambos lados del obispo, lo sostenían por delante de las piernas de éste. En cuanto a los indumentos que viste el personaje de la viga de Cruïlles, sobre el alba claramente se representaron la capa pluvial, la larga estola bordada y el palio corto cruzando su pecho. Aunque algunas de estas piezas —pannisellus y gremial— fueran utilizadas eventualmente por algunos abades durante épocas tempranas, el hecho de encontrárnoslas todas reunidas —palio, báculo con panniseílus y gremial— y en una cronología que ronda el año 1200 no hace sino insistir en la categoría y alta dignidad del personaje que debe ser, indudablemente, un obispo.
El que la parte alta de la viga esté más deteriorada precisamente sobre la figura del personaje que nos interesa, dificulta que podamos asegurar si su cabeza estuvo cubierta por una mitra, hecho que vendría a corroborar su carácter pontifical junto al resto de la vestimenta. Recordemos aquí que en la iconografía funeraria que se puso de moda en fechas coetáneas a la elaboración de la viga, las imágenes de procesiones mortuorias y entierros siempre se presidían por la figura episcopal, vestida con los elementos que hemos descrito para el dignatario de la viga de Cruïlles. Dos casos cercanos geográficamente nos servirán como paralelos. uno es el relieve funerario del claustro de Sant Quirze de Colera, con una idéntica composición del trío de dignidad y acólitos con el gremial. El segundo es un fragmento escultórico hoy conservado en el lapidario del Museu Episcopal de Vic. Fue hallado durante las excavaciones de la zona occidental del templo catedralicio vicense. Se trata de la parte inferior de un relieve posiblemente funerario y perteneciente a alguna de las capillas privadas del sector oeste de la catedral medieval Representa a una comitiva de la que podemos presuponer el cariz litúrgico, ya que entre sus integrantes puede distinguirse perfectamente al prelado, cuyos pies sobresalen precisamente bajo el gremial que es sostenido por los dos personajes que le acompañan.
Centrándonos ahora en la interpretación de la escena de la viga de Crui'lles, desde comienzos del siglo XX, los investigadores que han trabajado la pieza han hecho diversas propuestas sobre su iconografía. Si en algún momento se pensó que el tema pudiera ser algo relacionado con San Miguel y el Monte Gargano debido a la advocación del monasterio, Post indicó que se trataba de la comunidad benedictina en un acto litúrgico. Por otra parte, se ha propuesto que pudiera tratarse de dos escenas diferentes, con la comunidad monástica en procesión a un lado y el dignatario eclesiástico al otro, cuestión que desdice claramente el discurso narrativo de la escena, la procesión que va precedida por la comunidad en vestimenta litúrgica a la que sigue el posible prelado y sus ministros cerrando la comitiva ante las puertas de la iglesia. En cualquier caso, para su análisis iconográfico deben tenerse varias cosas en cuenta. La primera es que se trata de una pieza incompleta, es decir, que como vimos se halló reutilizada entre la estructura del retablo y, por lo tanto, descontextualizada de lo que debió ser una escena mayor y quizás un programa iconográfico, como ya indicamos líneas arriba. La procesión ha sido relacionada con una ceremonia y, quizás, un momento concreto de la historia del monasterio. la consagración de su iglesia o, en menor medida en cuanto a la identificación concreta de un momento de la ceremonia, la consagración de un nuevo abad. Esta propuesta de interpretación ha sido parcialmente cuestionada por E. Palazzo, insistiendo en cierta vaguedad del hecho litúrgico puntual y a favor de una escena procesional genérica en presencia de un abad u obispo. Así, se discute por un lado el hecho de que en una pintura románica se represente un acontecimiento concreto de la historia, a la que parece atribuirse cierta abstracción temática respecto a su mundo contemporáneo al que sólo aludiría de forma simbólica o a través de metáforas de compleja interpretación. Por el contrario, en pintura y miniatura románica tenemos numerosas representaciones del mundo contemporáneo de que traspasan claramente la esfera de lo simplemente simbólico y que ponen de manifiesto las preocupaciones de una institución eclesiástica, sus gobernantes o sus promotores más allá de la simple imagen del comitente. Por poner un simple y cercano ejemplo, las implicaciones políticas de la portada de Ripoll constituyen un caso especialmente representativo. También del siglo XII es una de las primeras representaciones figurativas de una procesión con imágenes, ahora en Italia. Se trata del relieve que ocupó la fachada de la iglesia de Santa Maria Beltrade y que hoy se conserva en el Castello Sforzesco de Milán. En el mismo, tal y como describe Bertoldo —el liturgista contemporáneo a la imagen que nos dejó unos ordines y calendario del rito milanés—, aparece el momento en el que se procesionaba con la imagen de la Virgen de Beltrade el día 2 de febrero, fiesta de la Purificación de María. Es decir, una fiesta litúrgica de importancia para una institución concreta y que fue representada en el momento en un lugar preferente de la misma, la portada Parece no haber duda de que en el románico sí se figuraron momentos concretos de la historia contemporánea y lógicamente, de la historia de la liturgia.
Por otro lado, se ha querido subrayar el estatismo del grupo del final, es decir, del dignatario eclesiástico y sus ministros, frente a los que marchan en procesión.
Evidentemente, la imagen de un posible prelado en procesión es mayestática en sí, un dignatario vestido con sus gafas sosteniendo el báculo y acompañado por dos acólitos sosteniendo el gremial, no da mucho juego en cuanto su movilidad cerrando una procesión al salir de una iglesia. Efectivamente, en la viga de Cruilles no aparecen todos los pasos del complejo ceremonial que conformaba la dedicación de una iglesia, por el contrario, se representó un momento concreto y que no es otro que la salida de la iglesia. Por otra parte, y como indicaba líneas atrás, algo no demasiado tenido en cuenta hasta el momento y es que la viga es una pieza incompleta y fuera de contexto, cuestiones que indudablemente nos llevan a plantear nos un hecho básico y es que nos falta buena parte del posible programa en el que se integraba la escena que nos ocupa.
Me gustaría destacar que el movimiento se percibe en toda la representación y que la voluntad de quien trazó la imagen fue precisamente la de resaltar un escenario marcado por la iglesia en el extremo izquierdo de la escena y de la que parte una comitiva cerrada junto a la puerta del templo por el prelado con todo su indumento procesional. Por otro lado, la imagen tiene una característica particular sobre la que quizás no se ha llamado la atención todo lo necesario. Se trata del hecho de que sobre la puerta se representara una cruz griega. Como bien sabemos, una de las partes del rito de consagración consistía en la pintura de cruces de consagración en distintos puntos del nuevo templo. Pues bien, el hecho de que voluntariamente y en un punto básico de la esquemática representación de la iglesia como es la puerta se pintara una cruz vuelve a insistir en la singularidad de la escena y llama la atención del espectador hacia la actividad que la ha motivado. En este sentido y como último punto de la argumentación, tengamos muy en cuenta la posible acción representada, la consagración de una iglesia Pocas fiestas concretas y adscritas a la memoria de una institución eclesiástica que la fecha de la consagración de su iglesia. De hecho, en contexto catalán conservamos una de las más importantes colecciones de actas de consagración altomedievales, especialmente elaboradas en tanto que piezas documentales, y que constituyen una característica propia de la cultura diplomática de la época. Todos estos puntos nos llevan a reconsiderar de nuevo que el acto representado en la viga de Cruilles no es otro que la ceremonia de consagración de su iglesia en el momento en el que la procesión daba la vuelta al templo, figurado con la cruz de consagración sobre la clave de la puerta de entrada. Respecto a la sinestesia litúrgica inherente a la representación que con razón destaca Eric Palazzo, indiquemos el canto de los monjes figurado a través de las bocas abiertas de los participantes, su movimiento de izquierda a derecha en procesión por la superficie de la viga, o el olor de los incensarios, inciden en cierta percepción sensorial de la imagen. Por último, cabría destacarse un último aspecto y es que, dada la cronología de la obra en el entorno del año 1200, pudiéramos pensar que en tales fechas se debieron realizar obras de cierta enjundia en el mobiliario litúrgico del edificio. quizás debiera ponerse en relación con algún abadiato concreto y de cierta importancia en el período o con un patronazgo que permitiera la citada renovación.

Majestad de Cruilles
También en el Museu d'Art de Girona se conserva la Majestad de Cruïlles, una talla de madera de un metro de altura representando el Santo Volto, es decir, Cristo crucificado vestido con el colobium o túnica larga y coronado. Según la tradición, la imagen se inspiraba en la que había tallado Nicodemo con el crucificado real como modelo y que, finalizada por ángeles escultores, se da culto en la localidad italiana de Lucca. El culto al tanto Coito tuvo un eco muy especial en Cataluña, en donde se conserva un nutrido número de Majestades desde tiempos del románico, como la Batlló, la de la Pobla de Lillet, o la de Caldes de Montbui, entre otras. En la de Cruïlles y según se ha propuesto, parece que la cruz se habría pintado con anterioridad mientas la figura fue añadida a posteriori, quizás sustituyendo a una anterior. Si la cruz es datable en el siglo XII, el nuevo crucificado lo sería en el siglo siguiente según parece delatar el hecho de que la figura esté coronada desde la propia talla y no con una corona de orfebrería añadida posteriormente. La imagen se trazó siguiendo el modelo de Cristo coronado y vestido con la túnica o colobium que citábamos, conservando buena parte de su policromía azul y dorados en los remates de mangas, bajos, cuello y el cíngulo que lo ciñe. 

Dejando a un lado a la figura de bulto, lo más interesante del conjunto es precisamente la cruz. Se trata de una pieza incompleta, ya que su brazo superior fue cortado rompiendo la simetría del diseño, la iconografía y epigrafía que se sitúan en su cara posterior. Tanto el anverso como el reverso fueron decorados con pintura e inscripciones. En el anverso, los laterales de la figura de cristo están ornamentados con pinturas rojizas entre líneas amarillas. En clípeos, situados bajo las manos y el pecho del crucificado, se pintaron motivos florales y de entrelazo. Parcialmente oculta por los pies, en el lugar del subpedaneum se escribió en tinta blanca sobre un fondo azul oscuro la inscripción SUM DEVS ET VENDOR SVM REX ET IN HAC CRVCE PENDOR. Los versos, referentes a la figura de Cristo en la cruz, fueron identificados por Anscari M. Mundó para la monografía de Manuel Trens sobre las majestades catalanas con una inscripción con el mismo texto que aparece en tapa posterior de las cubiertas de orfebrería del Misal de San Rufo de la Catedral de Tortosa.
En el reverso, hubo cinco imágenes pintadas, siguiendo la costumbre de decoración de las grandes cruces procesionales. En el centro y ocupando un gran clípeo, se sitúa el cordero sobre un fondo azul, sosteniendo entre las patas una cruz procesional. En el brazo derecho está el león de San Marcos, en el izquierdo el toro de San Lucas y a los pies, el ángel de Mateo. En los tres casos, junto a la imagen y desplegada sobre la superficie de los brazos respectivos leemos los epígrafes MARCHVS EV(AN)C(ELISTA), LUCHAS EV(AN) C(ELISTA) Y MATEVS EV(AN) C(ELISTA). Con la mutilación del brazo superior de la cruz que citábamos arriba, del reverso desapareció la imagen del águila de San Juan y la inscripción que la acompañaba, de la que sólo resta la letra C. Los laterales de la cruz y el fondo de las inscripciones aparecen decorados con una serie de bandas de distintos colores en una distribución simétrica a uno y otro lado, desde el centro de cada brazo.
En el cruce de los travesaños de la cruz, el clípeo central está organizado mediante círculos concéntricos de distintos colores alrededor del cordero. En el círculo central y en letras rojas se escribió el texto del Evangelio de Juan MONSTRATUR PICTUS UT AGNUS VIRGINES (LHC) NATUS      n, 1, 29) En el travesaño inferior, el más largo, y antes de la inscripción del evangelista Mateo, se colocó otro epígrafe con el texto ACNUS DEI QUI TOLLIS PEC(CATA MUNDI, MISERERE NOBIS). Se trata de una cita litúrgica de la súplica que se recita durante la ceremonia de fracción del pan. Tratándose de una de las oraciones cuyo texto permanece invariable en la liturgia, repitiéndose también en la de difuntos o en las letanías de la Virgen En el caso de la majestad de Cruïlles, ambos epígrafes están claramente vinculados a la pintura del cordero, a la que acompañan. En ambos casos se subraya el carácter redentor de Cristo, cordero nacido de la Virgen, con un trasunto eucarístico destacable y que se ha enfatizado para la aparición de este mismo tipo de epígrafes en otras piezas de ajuar litúrgico, como cálices y patenas.
Respecto al uso de la cruz en la iglesia monástica, no sabemos dónde estuvo localizada, aunque el hecho de que esté pintada por ambos lados quizá nos lleve a considerarla una pieza importante, objeto de tres posibles interpretaciones. Su metro de altura podría indicarnos que se trató de una cruz procesional, sin astil y llevada en brazos del cruciferario, como precisamente aparece pintada en la viga del monasterio. La segunda posibilidad es que pudiera estar colgada sobre el altar de la capilla mayor o sobre otro de los altares de la iglesia monástica. Por fin, una última posibilidad es que fuera la cruz del cierre del coro de los monjes, en el altar que habitualmente se le dedicaba a la Santa cruz en el trascoro de monasterios y catedrales.

 

Sant Felíu de Guíxols
El municipio de Sant Feliu de Guíxols, arrojado por el macizo de les Gavarres y bañado por el Mediterráneo en todo su sector meridional, se emplazada en la costa de la Vall d'Aro, en un territorio abrupto creado por las estribaciones del macizo de les Cadiretes (l'Ardenya o Sant Crau). Es actualmente la ciudad más grande del Baix Empordá, con un término municipal drenado por varios cursos torrenciales que desaguan en la bahía de la población —la bahía de Sant Feliu, cerrada a occidente por la montaña del Castellar o de Sant Elm, coronada por el santuario barroco homónimo— o en la de Sant Pol —al Norte de la demarcación.
Este puerto natural se bifurca en una prominencia rocosa denominada Punta Guíxols, el Fortim o el Salvament, lugar donde se hallan los vestigios de un poblado ibérico, posible origen de la actual población. Varios accesos conectan Sant Feliu de Guíxols, pues la carretera comarcal C-65 une el municipio con Llagostera que, dentro la demarcación, conecta con la C-35 que enlaza, a su vez, con la N-11. Asimismo, una carretera local transcurre paralela a la costa por las laderas de la Cordillera Litoral, uniendo Sant Feliu con Tossa de Mar.
El establecimiento de Sant Feliu de Guíxols, es fruto del proceso de colonización y repoblación territorial que tuvo lugar durante los siglos IX y X Que, con la consolidación del dominio carolingio, se asentaba beneficiándose de la protección natural de las Gavarres y de la sierra costera. La instalación de la región de la Vall d'Aro, que circunscribe Sant Feliu, ya era una realidad incipiente en el año 881, cuando Carlomagno se la concede en propiedad al obispo gerundense Teotari.

Antiguo monasterio de Sant Feliu de Guíxols
En el casco urbano medieval, no muy lejano a la costa y custodiado por las últimas estribaciones de la sierra de Sant Crau, el monasterio de Sant Feliu de Guíxols se emplaza como núcleo organizador de dicha ciudad, instalada al Este y a su amparo. Se trata de un cenobio establecido en época carolingia, quizás sobre una edificación original visigótica. Sus referencias fundacionales se hallan en el siglo X, cuando, en el año 968, el rey franco Lotari concede permiso al abad Sunyer para regir dicho convento (in honore sancti Felicis) y el de Sant Pol de Mar, simultáneamente. Este precepto refiere a la preexistencia del monasterio —aunque la mayoría de autores consideran que no debía ser mucho más antiguo, situándolo hacia finales del segundo cuarto del siglo X—, que ya se dotaba de importantes posesiones, como las antiguas iglesias de Santa Maria de Fenals d'Aro y de Sant Martí de Biert (Gironès), así como los alodios de Solius, Romanyá de la Selva, Calonge de les Gavarres, Vall-llobrega y uno denominado Spanitate.

Fachada occidental 

A partir de estas fechas se comienza a generar una importante cantidad de documentación referida, generalmente, a donaciones efectuadas hacia el cenobio. Algunos autores señalan que la zona fue víctima de una ofensiva pirata en el año 965, en la que se incendió el monasterio en su práctica totalidad, tan sólo perviviendo el armazón más potente —como el campanario y las denominadas torres del Fum y del Corn—. El cenobio de Sancti Felicis de Gissalis vuelve a aparecer, en relación a una cesión alodial por parte del condado, poco antes del cambio de milenio. Así ocurre también en 1016, cuando el conde Ramon Correll l y su esposa Ermessenda confirman el dominio a Sancti Felicis cenobii Guixolensis de otro alodio anteriormente cedido por el conde Sunyer I. En el año 1041, al convento le fue concedida la custodia del castillo de Benedormiens —origen de la villa de Castell d'Aro—, que, a mediados de dicho siglo, fue entregado en feudo a Bernat Causfred, señor de Pals y padre de Oliver Bernat, que más tarde usurpó varias propiedades monásticas.
El conflicto originado, a partir de la voluntad del conde Ramon Berenguer Ill, de agregar la comunidad monacal de Sant Feliu de Guíxols —y la de Sant Pere de Galligants, en Girona— a la abadía languedociana de Santa Maria de la Grassa y la consecuente desconformidad por parte de la congregación guixolense, permitió que, en un documento de 1117, se recogiera la noticia que describe el monasterio como una construcción fortificada, que fue invadida por Berenguer de Narbona —hermano del antedicho conde— sin éxito.
Los siglos siglo XII y XIV fueron de gran importancia en cuanto al desarrollo del lugar, pues, cuando en 1163 le fue otorgada una bulla del pontífice Alejandro Ill (que le confirmó las posesiones y la concesión de una libre elección del abad), el cenobio ya dominaba toda la Vall d'Aro y diversos territorios de las actuales comarcas del Baix Empordá y de la Selva. En siglo XIII, las posesiones del monasterio fueron ampliadas al adquirir terrenos en Mallorca, por haber enviado 170 hombres durante la conquista de la isla. A mediados del siglo XIX, Jaime Villanueva consigna, en su Viaje literario, el privilegio del rey Pedro el Grande concedido al abad Ramon para modificar “et de novo construendi et ediÍicandi monasterium et villam sancti Felicis”.
En 1285 el monasterio fue, según parece, parcialmente destruido por dos galeras francesas que atacaron la villa, por lo que se inició una reconstrucción llevada a cabo por el abad Gilabert, mientras que el proceso reformador principal del conjunto no se ejecutó hasta los siglos XIV y XV, momento en el que se erigió una gran iglesia gótica (que se benefició parcialmente de la edificación románica anterior) y las ampliadas salas monacales fueron custodiadas por un nuevo sistema de defensa.
Por otra parte, el hecho que la jurisdicción de la incipiente villa de Sant Feliu de Guíxols —formada y fortificada entre los años 1181 y 1200 de manera dependiente al cenobio— restara compartida entre el rey y el abad del monasterio, fue causa de una dilatada etapa conflictiva entre el poder civil —de una población gradualmente mayor— y el poder religioso de la comunidad monacal, período que prácticamente no finalizó hasta la desamortización en 1835. Tras varios intentos, en 1680 el monasterio fue reconocido como castillo fronterizo y la población lo reconoció señor feudal. Asimismo, dichas desavenencias impulsaron al gobierno civil de la villa a crear, sin éxito, varios centros religiosos que substituyeran la función parroquial asumida tradicionalmente por el templo monástico, uso que mantiene en la actualidad.
Finalmente, y después de la desproporcionada —e inacabada— construcción impulsada en el siglo XVIII por el abad Benet Panyelles —que además permitió, a partir de 1793, su provisional empleo como hospital militar—, tras la exclaustración del Trienio Liberal l 820-1823), la comunidad benedictina de Sant Feliu de Guíxols fue desalojada durante la desamortización de Mendizábal en 1835. Desde entonces, y después de haberse cedido a la población, los usos del conjunto monástico fueron muy heterogéneos, hasta que modernamente se ha convertido en el Museu d'História del municipio, además de ser un potente foco de estudios culturales de diversa índole. Desde 2012 alberga también el Espai Carmen Thyssen, situado en el denominado Palau de l'Abat, un edificio integrado en el complejo cenobial recientemente restaurado—.
El conjunto de Sant Feliu muestra una variada arquitectura, fruto de las múltiples edificaciones cimentadas durante su dilatada historia, cuyos vestigios muestran elementos establecidos, aparentemente, desde época romana y tardoantigua hasta nuestros días. Aún teniendo en cuenta la actual distribución arquitectónica de los edificios que conforman el monasterio, como ya se ha mencionado, la documentación conservada aporta cierta información que facilita la imagen que el conjunto debía ofrecer durante los últimos siglos de la Edad Media.
En líneas anteriores se ha aludido a un documento, del año 1117, que describe el monasterio como una construcción fortificada, cuyas estructuras fueron reformadas a partir de la segunda mitad del siglo XIV, al menos, dentro del proyecto que incluía el bastimento de una nueva iglesia. Tras el ataque francés de 1285, las obras impulsadas por el abad Gilabert restituyeron el muro protector de la Porta Cerrada, que forma parte del sector occidental de la iglesia románica, así como rehabilitaron ésta última. Por un testamento del año 1342 es posible conocer la existencia de la capilla de Sant Nicolau —que entonces estaba erigiéndose—, situada entre las murallas de la villa y el monasterio —es decir, próxima a la puerta lateral del templo cenobial—, a la derecha de la rivera y a levante del cementerio de la Mota y ante la nueva iglesia (es desconcertante la referencia “iglesia nueva”, puesto que el documento podría referir a la nueva edificación gótica, o bien a que la iglesia románica fuera conocida con dicho calificativo, por lo que se daría por supuesto la existencia de un lugar de culto anterior a ésta). A la postre, la capilla de Sant Nicolau fue derribada a finales del siglo XVI, y sus sillares fueron parcialmente aprovechados para cimentar la sacristía de la iglesia monacal.
Desde 1219, la comunidad monacal de Sant Feliu perteneció a la Congregación Claustral Tarraconense, uniéndose, en el año 1435, a la Congregación de Santa Justina de Padua, mientras que en 1515 comenzó a formar parte de la Congregación benedictina de Valladolid, la misma establecida en el monasterio de Santa Maria de Montserrat. La elección trienal o cuatrienal —según la época— de los abades, incitó a numerosas modificaciones constructivas y funcionales del conjunto, establecidas según la moda correspondiente en cada caso. Aunque en siglos posteriores aparece diversa documentación alusiva a otras construcciones pertenecientes al monasterio de Sant Feliu, que a su vez refiere a elementos arquitectónicos de tipología románica, es lícito mencionar la existencia de dos planimetrías, realizadas en el siglo XVIII, en las que se muestran algunas estructuras actualmente existentes, así como el gran proyecto truncado trazado por el abad Panyelles, que aspiraba edificar un colosal cenobio, emplazado al Sur de la iglesia, consistente en cuatro grandes flancos limitando un espacio claustral. De esta obra magna tan solo se realizaron dos de las cuatro alas —que presentemente albergan las estancias museísticas del municipio—, de igual forma que el denominado arco de Sant Benet, una magnífica portalada barroca fechada de 1745— que hubiera actuado como acceso al renovado conjunto monacal, relegándose, en la actualidad, a un espacio exento de cualquier edificación, cuyo peculiar perfil ha sido convertido en uno de los símbolos de la ciudad.
Después de múltiples intervenciones y campanas arqueológicas —que van desde los años treinta del siglo XX hasta la primera década del actual, y que consistieron, en parte, en trabajos de eliminación de edificaciones añadidas—, de todo el conjunto abacial, las estructuras más significativas correspondientes a época románica se encuentran, básicamente, en el sector occidental del templo monástico y parroquial de la Mare de Déu dels Ángels, cuya advocación patronal a Sant Feliu fue substituida en el siglo XVIII. Dichas estructuras conciernen a dos elementos turriformes denominados Torre del Fum (del humo) y Torre del Corn (del cuerno), situados al Norte y al Sur respectivamente, que flanquean un ante puesto pórtico bautizado como la Porta Cerrada (puerta Cerrada), así como también atañe, a la misma tipología, un pequeño tramo de los pies de la nave de dicha iglesia. Las torres mencionadas formaban parte del sistema defensivo del que se dotaba el antiguo monasterio, integrado en una fortaleza amurallada y abaluartada que, a pesar de que en mayor medida leche del siglo XIV, contiene elementos reaprovechados de construcciones preexistentes. Coincidiendo con la erección de la iglesia gótica, parte de la fábrica prerrománica y románica fue adaptada e integrada a la nueva edificación, como ocurrió con el conjunto de estructuras anteriormente citadas.

El elemento más ilustre, destacado y, a su vez, más controvertido del cenobio de Sant Feliu de Guíxols es, sin lugar a dudas, la Porta Cerrada. Se trata de un lienzo de pared estructurado en dos niveles, dispuesto en paralelo (pero sin cubrirla del todo) a la fachada occidental de la iglesia, como si de un pórtico o galilea precedente se tratara. El piso inferior lo constituyen tres prominentes arcadas de destacada herradura —siendo más reducida la central— creadas por pequeñas dovelas y apoyadas sobre cuatro columnas chatas, compuestas de base de gran moldura, fuste monolítico y capitel troncopiramidal de sección de listel (salvo el situado al Sur, únicamente conformado por dos piezas). Sus características evidencian que sólo subsiste un fragmento de lo que debiera ser un frontis más extenso, puesto que a ambos lados se conservan elementos que insinúan una continuidad del muro (en el extremo Sur, particularmente, queda medio arco de características similares, tapiado y truncado por una pared perpendicular y de factura tardía).
El nivel superior, en cambio, lo forma un registro de tres grupos de ventanas tríforas —abiertas en paralelo a las tres arcadas del piso inferior— de arco de perfil de herradura más discreto, apoyado sobre sendas columnas de fuste monolítico u cuyas erosionadas bases muestran una ligera escocia. Los capiteles mensuliformes, en cambio, aparecen adornados con unos relieves angulares que crean unas formas de arco de herradura, mientras que aquellos dispuestos en el grupo Sur presentan una temática geométrica distinta. Todo el conjunto está enmarcado por una moldura de arcuaciones ciegas, compuestas por arquillos tallados en piedra monolítica que descansan sobre ménsulas ornadas de manera geométrica, casi cruciforme. En este sector también son visibles algunos vestigios que muestran una dimensión de la obra diversa a la actual, todo ello levantado por un aparato constructivo consistente en sillares de piedra granítica, toscamente escuadrados y dispuestos en hiladas irregulares, donde destaca una fina línea arcillosa que divide las ventanas de los arquillos ciegos.
Actualmente, el conjunto aparece cubierto por una techumbre que, junto con la cristalera protectora de los arcos, forma una galería de paso entre el extradós del sector occidental medio de la iglesia y el intradós del piso superior.
El muro perpendicular adosado al Sur de dicho pórtico, consistente en dos arcadas (tapiadas) ensanchadas en sus jambas, con un aparejo rústico aparentemente anterior al siglo XI, aunque, por sus características, su construcción parece ser posterior al resto de la Porta Cerrada, considerada como parte del atrio que presidía el antiguo templo (otras teorías lo convierten en una posible parte de un claustro, o bien, tres arcos formeros que separaban dos naves de una iglesia orientada de Norte a Sur), y que ha sido fechada, por algunos autores, a mediados del siglo X (aunque no se descartan hipótesis dispares, puesto que dicho elemento es uno de los más controvertidos de todo el monasterio).
Flanqueando el sector más occidental de la iglesia de Sant Feliu, aparecen las estructuras turriformes conocidas como la Torre del Fum y la Torre del Corn. Ésta última, emplazada en el lado Sur, es una construcción de planta rectangular supuestamente truncada hacia la mitad de su alzado, pues aparentemente le resta la parte superior del edificio. Asimismo, por la diversidad de paramento, es posible identificar dos técnicas constructivas, claramente visibles al exterior. Así pues, desde la base y hasta una altura de unos cuatro metros, la torre ha sido levantada con sillares de piedra granítica local de grandes dimensiones (aunque por el interior esté forrado con sillarejo de menor tamaño), que aparecen cuidadosamente escuadrados y dispuestos en regulares filas, y cuya naturaleza es atribuida a una edificación de época romana (puesto que el material conserva marcas características de las prácticas constructivas del momento). La parte superior, en cambio, que presenta un rudo sillarejo colocado en hiladas uniformes, se muestra toscamente truncada y culminada por una terraza de sección horizontal En una de las caras exteriores de la atalaya, concretamente la orientada al Sur, a partir de la altura del segundo piso, aparecen una serie de franjas verticales como si de una sucesión de falsas pilastras se tratara.
Asimismo, el lado occidental presenta una abertura arquitrabada que probablemente atañese a un acceso que comunicaba con alguna construcción próxima a la Porta Cerrada, mientras que en la cara contraria de la Torre del Corn, situada en posición elevada en el ángulo Noroccidental, se abre una alargada ventana acabada en punta (el dintel lo forman dos bloques de piedra dispuestos de manera inclinada).

Porta cerrada con la torre del Fum

Porta cerrada con la torre de Corn 

Del mismo modo, diversos vanos se emplazan al Sur y al Norte, siendo el más inferior el que vincula dicha estructura con el actual museo, y que consta de una puerta de arco de medio punto enladrillado, decorada con pilastras ficticias en sus jambas. La primera abertura que se halla en el lado Norte es aquella que enlaza la torre con el nivel inicial de la Porta Cerrada, se trata de una puerta de arco rebajado para la que se empleó piedra notablemente canteada. Interiormente, el primer nivel de la construcción está cubierto por una bóveda apuntada que lo dota de gran altura, cuyo descanso recae sobre cuatro pilastras angulares internas —integradas en el paramento perimetral— que forman arcos ojivales en los lados cortos de la torre, así como de medio punto en los largos.
Aunque la estructura de la segunda planta aparezca similar a la descrita con anterioridad —sobre todo en cuanto a la bóveda apuntada—, existen características dispares a ésta, pues se aprecian dos registros de aberturas y unos muros perimetrales que manifiestan que, en origen, el espacio se dividía en dos niveles —hecho que corroboran los orificios del envigado, así como parte del techo conservado en el ángulo Sudoriental—.
Los arcos de sustentación de la cubierta se presentan de forma heterogénea, puesto que existen dos de medio punto en el lado Norte —siendo más bajo el oriental—, uno a occidente que descansa sobre un pilar y uno al Oeste —que actúa de la misma forma—, esto es debido a que se debió dejar un espacio de paso para acceder al vano puntiforme, abierto en el muro perimetral Noroeste de la torre, anteriormente indicado. Por la forma apuntada de las arcadas, éste sector se consideraba una reforma del siglo XIV, pero, por toda una serie de elementos, es posible fecharlo del siglo XII, momento en que este tipo de construcciones se comienzan a utilizar en Cataluña. Dos hornacinas se disponen a este mismo lado, siendo de arco de medio punto la más inferior y arquitrabada la situada sobre la ventana antes mencionada. Asimismo, un par de portillas fueron abiertas encima de la cubierta de la iglesia, cuyas características muestran un arco de medio punto al interior y uno rebajado al exterior. Otro arco de sustentación, en este caso de sección apuntada, aparece al Este también descentrado, por lo que apoya su peso sobre el muro Sur de la Torre del Corn. Por encima de éste se abre una ventana cuadrangular y sobre ésta un llano espacio con unos bancos de piedra a ambos lados, así como una moderna puerta fue torpemente abierta en la esquina Norte, seccionando parcialmente el arco que cercaba a septentrión. En este segundo piso de la torre, al Sur se abre una puerta de arco de medio punto de tradición claramente románica —que actualmente da al vacío—, flaqueada por un friso de aspilleras —situadas a un nivel algo bajo en relación al pavimento— con una fuerte inclinación descendente, presentando una clara desviación hacia la puerta las dispuestas a su alrededor; todo el conjunto está encuadrado por desbastada piedra que parece dotarlas de una cierta unidad. Cabe mencionar que, por la falta de arcos estructurales, en éste sector el muro presenta un doble grosor con respeto al resto. Por su apariencia, es posible que, en origen, la Torre del Corn estuviera formada por un podio, correspondiente a la base del elemento, todavía vigente, que sostendría una atalaya de material efímero, que sería substituida posteriormente por los dos pisos superiores (erigidos en piedra), momento en el que, el nivel de circulación, se situaba a la altura del primer nivel de la torre.

Fachada norte 

A unos 3 m de distancia de su compañera, la Torre del Fum alza sus 19 m de altura, en el ángulo Noroeste del conjunto. Su peculiar planta semicircular deformada —ligeramente elíptica— la transforma en un elemento troncocónico seccionado en sentido longitudinal por un plano ligeramente inclinado, cuyo muro Sur, apoyado sobre contrafuertes, transcurre paralelo a la iglesia, lo que hace creer que originalmente se adosaba a una edificación preexistente de la que no queda aproximadamente rastro. En el sótano de ésta torre —totalmente habilitada para su visita— existen los vestigios de una construcción de la época del bajo Imperio Romano —que probablemente corresponda a un mausoleo funerario o baptisterio—, cuya planta marca un cuadrilátero al exterior y un octógono al interior donde, a una altura muy próxima al pavimento, es posible distinguir una serie de pentáculos y cruces inscritas en sus paredes. La parte más elevada de la torre está culminada por un primer nivel de almenas tapiadas sobre las que, posteriormente, se sobrealzó otro cuerpo rematado por una terraza rodeada de ménsulas, aspilleras y un nuevo juego de merlones, quizás fechable en el momento de construcción de la iglesia gótica. Al Norte del elemento defensivo se conservan los vestigios de un arco de herradura que guarda gran semejanza —en cuanto al material y a la tipología— con los de la Porta Cerrada. El basamento y el tronco de la torre contienen un aparato constructivo elaborado con pequeño y heterogéneo sillarejo sin trabajar, con tendencia a formar hiladas, en el que se puede adivinar algún sector dispuesto en opus Spicatum.
Por sus características constructivas, tipológicas y documentales, ambas torres son consideradas una construcción defensiva —que abarcaría los límites Norte y Sur marcados por unas edificaciones de época romana— ejecutada en el mismo momento de la fundación del monasterio de Sant Feliu de Guíxols, en una cronología próxima a los siglos IX y X.
En cuanto a la iglesia, de la construcción románica sólo se conserva el tramo occidental, perfectamente integrado en el actual centro de culto, que muestra, en su mayor parte, un estilo gótico de la segunda mitad del siglo XIV. A los pies de la nave, los vestigios del edificio preexistente muestran al exterior una fachada a dos aguas muy modificada —que se eleva por encima de la Porta Cerrada— decorada por lesenas y en cuyo centro aparece un pequeño vano en forma de cruz latina, flanqueada por dos pequeños óculos, fruto de una reforma posterior.
Por debajo de éstos se abre una gran ventana de arco de medio punto abocinada, escoltada por dos ventanas más pequeñas de similar morfología. El acceso al templo, que se efectúa por medio de una puerta de factura tardía, da paso a un primer tramo dominado por una nave de dimensiones considerables, toda ella cubierta por una amplia bóveda de cañón que, hasta el dilatado arco fajón, forma parte de la antigua iglesia románica. En el muro sur aparece un arco a modo de arcosolio que también podría corresponder a una abertura que vinculaba el templo parroquial con la Torre del Corn y otras estancias monacales.
La construcción, lejos de descansar directamente contra los torreones que la flanquean, deja un espacio vacío convertido en un pasillo o pasaje de ronda, aunque se cree que, en origen, los muros de la iglesia sí se apoyaban sobre dichos elementos. Aunque se desconocen las dimensiones longitudinales y la forma del edificio románico, por su disposición y apariencia, se cree que se trataba de un edificio sin mayor complejidad estructural, cuya planta prescindiría de transepto. Asimismo, los estudios efectuados a partir de las prospecciones realizadas han concluido que el núcleo del complejo monástico y eclesial se hallaba en la zona más elevada del sector, que corresponde al tramo situado entre ambas torres, aproximadamente. De ésta forma, es posible conocer que la cabecera gótica se construyó ganando terreno hacia el Noroeste, en consecuencia, al ábside del edificio románico cabría situarlo, como punto límite, hacia el crucero actual. De la misma forma, se teoriza sobre la construcción de dicha iglesia en un espacio libre entre la Torre del Fum y la Torre del Corn. El aparato constructivo del tramo románico consiste en sillares pequeños y bastante toscos, mínimamente escuadrados, que forman hiladas rectas pero irregulares, en cuyas oquedades es posible distinguir ciertos fragmentos de cerámica. Por sus características, la datación del sector concerniente debe situarse a caballo de los siglos XI y XII.

 

Palau-Sator
El municipio de Palau-Sator se encuentra entre la llanura del desecado lago de Pals, el mar y los llanos de Torroella, protegidos por el macizo del Montgrí. La cabeza de municipio es el pueblo homónimo, presidido por un castillo de origen altomedieval con amplias reformas góticas (la torre del castillo da nombre al municipio, “sa tor”), aunque el término incluye además los núcleos de Sant Juliá de Boada, Sant Feliu de Boada, Fontclara y Pantaleu. Tradicionalmente agrícolas y ganaderos, estos parajes se ha reconvertido en una cotizada zona de lujosas segundas residencias y establecimientos turísticos.
Palau-Sator se halla a 9 km de la bisbal y a 38 km de Girona. Para llegar podemos tomar la C-66, que pasa por la bisbal y Peratallada, o bién dejar esta carretera y tomar la Ci- 642 en La Pera, y luego girar en la rotonda de Serra de Daró en dirección a Ullastret y al propio Palau.

Iglesia de Sant Pau de Fontclara
El pueblo de Fontclara está situada a 1'3 km al Norte de Palau-Sator. La iglesia se sitúa al fondo de una plaza que se encuentra al final de la primera calle a la derecha desde la entrada al pueblo por la carretera de Palau.
Sant Pan de Fontclara fue, en origen, un monasterio benedictino, según se documenta inicialmente en un precto del rey Odón del año 889. La comunidad, sin embargó, no debió prosperar, y ya en el 908 aparece el lugar como dominio de la abadía languedociana de Santa Maria de la Grassa. Desde finales de siglo XII está documentada como parroquia.
La iglesia es un edificio románico de una sola nave, con un ábside semicircular cuyo muro exterior articulan tres largas lesenas, sin arcuaciones ciegas en la cornisa superior Entre dichas lesenas se abren tres ventanas de doble derrame. En una reforma del siglo XVII se añadieron varias capillas a la fábrica original, además de una sacristía, y se reformó también la fachada occidental, en donde hay una bonita portada clasicista, una ventana rectangular y una gran espadaña de doble vano. Hay otro acceso, quizás original (aunque parece reformado) y actualmente cubierto con un vidrio, en el extremo del costado sur, lugar donde se aprecia mejor el aparejo del templo primitivo.

En el interior, la bóveda de la nave es de cañón corrido, apuntada, y quizás añadida posteriormente a la estructura de los muros. La bóveda del hemiciclo absidal es de cuarto de esfera y está decorada con uno de los pocos ejemplos de pintura mural románica de la zona. Aunque evidentemente reformado, y restaurado modernamente, el aparejo interior queda completamente a la vista, con un sillarejo de pequeño tamaño, bastante irregular, algo mejor en el muro del ábside. Denota una obra del siglo XI.

Pinturas del ábside
La decoración pictórica del ábside es, sin duda, el elemento de mayor interés del conjunto de Sant Pau de Fontclara. Su programa iconográfico presenta algunas peculiaridades poco comunes entre las pinturas murales del románico catalán. Una reciente restauración, en el año 2007, ha devuelto con rotundidad la brillantez a los colores originales, lo que facilita la lectura de las imágenes, pese a las abundantes pérdidas que se observan, sobre todo, en la parte superior.
En el centro de la cuenca absidal, preside el conjunto una imagen de la Maiestas Domini en una mandorla prácticamente circular, perfilada por tres bandas de otros tantos colores distintos. ocre, azul oscuro (muy desgastado) y celeste. La figura de Cristo porta nimbo crucífero y está sentado en el arco del cielo, representado con el mismo tipo de líneas y colores que la mandorla. Viste túnica azul con cuello y puños en ocre oscuro y manto en los mismos tonos de tierra, profusamente adornados con pliegues delicadamente dibujados. Se muestra en actitud de bendecir, con el Libro en la mano izquierda, y a su alrededor se disponen los cuatro símbolos del Tetramorfo.
Debajo de este espacio central, y sobre un fondo de bandas de colores planos, se representa un apostolado completo, presidido, en el centro, por las figuras de san Pedro y san Pablo. La distribución de los apóstoles, que dialogan en parejas afrontadas, guarda semejanzas con la representación que de la misma escena encontramos en el folio 36 de la biblia de RipolÍ, aunque no parece factible pensar en una relación directa del manuscrito sobre la pintura. La representación de los apóstoles es habitual, desde luego, en las artes pictóricas del románico catalán, siendo quizás las figuras de algunos frontales de altar tardíos (Baltarga, Orellà) las más próximas a las de Fontclara desde el punto de vista de la composición (apareados y dialogando), aunque no respecto al estilo.

Una amplia franja ornamental, decorada con ajedrezado, separa las figuras apostólicas del registro inferior, que queda articulado por las tres ventanas absidiales. Se presenta aquí un ciclo de san Pablo, el titular de la iglesia, dividió en cuatro escenas que se leen de izquierda a derecha. La primera, con la figura de Pablo, barbado, sin nimbo y con un cayado en la mano, representa el momento de emprender el camino hacia Damasco. La segunda escena, situada ya entre dos ventanas, muestra a Pablo después de caer del caballo, con los ojos cerrados para representar la ceguera causada por el destello de la visión divina, aquí representada con la Western Domini que le señala, completan el cuadro las figuras de tres soldados, con sus respectivas lanzas, que le acompañan en el viaje. En el platón siguiente se dibuja el bautismo. Pablo, todavía sin nimbo, es bautizado por Ananías ante una figuración arquitectónica en la que algunos autores han visto la casa de la calle del “Recto Camino”; la mano de Dios bendice la escena, mientras que otros tres personajes, de pie, la contemplan. La última escena está bastante deteriorada y es difícil de identificar: aparece un personaje nimbado e imberbe, que no parece ser Pablo. Restos de cortinajes pintados en la parte inferior revelan cómo se completaba la decoración absidial, en la parte inferior del muro.
También el arco triunfal estaba ricamente decorado, en este caso con imágenes de los 24 ancianos del Apocalipsis, retratados por parejas, en la adoración del Cordero que se halla representado en un medallón central, en la clave del arco.
Los ancianos están de rodillas, mirando a la teofanía, tocados con coronas y vestidos con túnicas blancas, ofrecen los instrumentos musicales y las copas de perfumes. Su disposición es excepcional dentro de la pintura románica catalana, en la que los ancianos aparecen frecuentemente pero nunca representados de esta forma, que parece reflejar una peculiar combinación de modos arcaizantes y novedades temáticas de finales de siglo XII y principios del XIII, probablemente se funden aquí las visiones apocalípticas de Juan y Mateo combinadas con las fórmulas compositivas de dos tradiciones iconográficas de la representación de la adoración de los ancianos, una proveniente de Italia y el mundo carolingio (tradición occidental) y la otra, hispana, que perpetuó algunas imágenes paleocristianas a través de los beatos. Todavía, en el arco exterior, aparecen dos personajes más, uno en cada lado, en la parte superior, nimbados, pero no tocados. El de la derecha porta un instrumento musical, acaso el rey David, el de la izquierda no se identifica.
El conjunto pictórico, con esta particular Parusía, parece una interpretación bastante original de los textos bíblicos, la disposición de los Ancianos, en actitud de adoración, es una novedad que se repite solo, en Cataluña, en la iglesia relativamente próxima de Sant Tomás de Fluviá, aunque por su ubicación (en el arco triunfal, dispuestos por parejas en registros superpuestos) pueden relacionarse con las pinturas Que hubo en la vecina iglesia prerrománica de Sant Juliá de Boada; incluso se ha llegado a pensar que Fontclara y Sant Juliá fueron obra de un mismo taller.

Al interés y originalidad iconográfica, que revelan una cronología de ejecución tardía, muy probablemente posterior a 1 200, se opone una definición estilística que no refleja las novedades bizantinizantes del momento, y que, por el contrario, mantiene unas formas geométricas y un el hieratismo figurativo de corte ciertamente tradicional.

 

Ullastret
El municipio de Ullastret se sitúa en la llanura aluvial bajoampurdanesa, en la ribera meridional del río Daró. La población se encuentra mayormente concentrada sobre un ligero montículo de unos 50 m de altura sobre el nivel del mar, al lado de la carretera Cl-644, que es la principal vía de acceso. Se llega, desde Girona, primero por la C-66 en dirección a Palamós y luego, en La Pera, tomando la carretera de Torroella de Montgrí (Cl-643) hasta Serra de Daró, de donde sale, hacia el sur, la mencionada Cl- 644.
A unos 900 m. al Noreste de la población, se encuentra el gran poblado ibero de Puig de Sant Andreu, uno de los más importantes y mejor conservados de toda Catalunya. El lugar, además, fue reutilizado en época carolingia para la instalación de un importante castro, profusamente documentado con el nombre de Castelum Vellosos. Muy cerca hay otro yacimiento íbero, el de Illa d'en Reixac, completando un gran conjunto arqueológico que es una de las sedes del Museu d'Arqueologia de Catalunya. Cabe destacar también que en esta misma zona nororiental del municipio hubo un antiguo estanque, documentado desde la Antigüedad hasta el siglo XIX, cuando fue desecado entre 1856 y 1886.
El origen de la población de Ullastret se vincula al mencionado castillo Velloso. Ya en un diploma otorgado a la catedral de Girona por Luís el Piadoso, en el año 834, se cita entre las posesiones donadas un antiguo villarem llamado Celsianum y una villa nova llamada Vellosos, con un castelo suoque termino. En un diploma posterior (899) de Carlos el Simple, hay noticia explícita ya de una vivía Uliastreto, junto con las aldeas de Velloso y Castellare, y las ecclesiis Sancti Petri et Sancti lohannis. Estos antiguos asentamientos se podrían relacionar con las necrópolis del Camp de les Lloses y de los Camps d'en Moma (o de Sant Andreu), Que están situadas en las proximidades del Puig de Sant Andreu, al borde del antiguo estanque.
El Castellum Vellosos debió ser abandonado en la segunda mitad del siglo X, pues deja de evocarse en la documentación. Desde entonces la villa de Ullastret destaca sobre el resto de lugares de su entorno, donde también se incluye la iglesia de Sanctis Andree. El lugar fue codiciado tanto por los condes de Empúries como por los de Barcelona-Girona, saliendo éstos últimos vencedores en un pleito de 1018, donde se discutía una donación del mismo año, en la que la condesa Ermessenda había otorgado a su hermano, el obispo Pere Roger de Girona, un alodio en Ullastret et in Vellosos et in Tres Miseros. Ésta documentación aporta el curioso dato de que el territorio contenía los mismos límites Que actualmente corresponden al municipio. No obstante, según testa el conde Ponç l de Empúries en 1078, des del siglo XI la zona perteneció al dominio de los condes emporitanos, convirtiéndose en un punto significativo de la organización territorial de la llanura ampurdanesa, cuyos vecindarios —Que paulatinamente dejan de mencionarse en la documentación— fueron agrupados alrededor de la parroquia y del castillo de Ullastret.
Este castrum de Oleastreto aparece mencionado por primera vez en 1225, año en el obispo de Gerona lo adquiere del conde Hug IV de Empúries como garantía de un convenio. El término y la parroquia del lugar son mencionados durante los siglos XIII y XIV en relación a los obtentores de sus diezmos, y en éste último siglo el castillo consta como uno de los que se construyeron en el condado de Empúries, durante el año 1309, avalando el proyecto matrimonial entre Ponç Hug V de Empúries y Elisabeth de Sicilia, hija ilegítima de Federico II de Sicilia, cuyo enlace tuvo lugar en 1313. Durante la etapa de enfrentamientos entre su padre, el conde Ponç Hug IV de Empúries, y el rey Jaime H, las tropas reales acometieron Ullastret en 1311, y a finales de siglo el lugar sería nuevamente tomado por los soldados de Pedro el Ceremonioso.
En el siglo XV, el castillo estuvo sucesivamente bajo el poder de las familias Santfeliu, Margarit y, finalmente, Senesterra, dinastías emparentadas entre sí. En el siglo XVII Ullastret encabezaba la real alcaldía que comprendía los pueblos vecinos de Llabiá, Serra de Daró y Casavells.
Declaradas bien Cultural de interés Nacional (BClN) en 1949, las murallas del antiguo castillo de Ullastret abrigan todavía gran parte del núcleo urbano. Forman un espectacular conjunto de diez torres, una semicircular y el resto rectangulares, Que flanquean los gruesos muros ataludados y aspillados. El conjunto se corresponde con la obra tardomedieval, fechado entre los siglos XIII y XVI.

Iglesia de Sant Pere
Sant Pere d'Ullastret, así como Sancti Iohannis y Sanctis Andree, aparece citada por primera vez en el mencionado precepto real de Carlos el Simple, del año 899, donde el monarca confirma varias posesiones a un matrimonio particular. Riquilda, vizcondesa de Narbona, en una venda del año 949, adjudica al conde Causfred de Empúries unas tierras de Ullastret en las que constan las iglesias dedicadas a San Pedro, San Juan y San Andrés, y donde no acaba quedar claro si se trataba de una edificación de triple advocación o de tres edificios independientes.
Más adelante, la parroquia de Ullastret se documenta en el año 1251, momento en el que los condes ampurdaneses convierten el lugar en un núcleo administrativo, una vez iniciado el crecimiento económico y demográfico de los siglos XII y XIII. El templo aparece mencionado en las Rationes decimarum gerundenses de los años 1279 y 1280, así como en los nomenclátores diocesanos de los siglos XIV (hay noticia de la elaboración de un retablo en 1396, donde se alude a un altar dedicado a san Juan) y XVII. Asimismo, en una visita pastoral de 1420, la iglesia de sancti Petri de Ullastret aparece como la primera parroquia visitada por el obispo, en cuya acta se menciona el altar mayor y los dedicados a santa María, san Juan y san Lorenzo, también se visita la capilla de Sant Andreu, dicte parrochie extra dictam parrochialem ecclesiam, que disponía entonces de dos beneficios simples. En la actualidad, mientras la iglesia de Sant Pere mantiene la función parroquial, la ermita de Sant Andreu de l'Estany (documentada desde el siglo XIII hasta el XVIII) está desacralizada; alberga la colección museística de la sede, en Ullastret, del Museu d'Arqueologia de Catalunya.
La iglesia parroquial de Ullastret exhibe una magnífica arquitectura de planta basilical de tres naves — siendo la principal de mayores proporciones— encabezadas por sendos ábsides de tambor y absidiolas semicirculares. Aunque conserva su aspecto arcaizante, el edificio está configurado por diversas estructuras pertenecientes a varias etapas constructivas, formando una fábrica de notables dimensiones. A parte de dichas modificaciones históricas (entre las que, entre otros elementos, se debe incluir la adición de capillas laterales y una sacristía en el presbiterio meridional, todas de fractura tardía), durante los últimos cincuenta años el templo ha sido intervenido, restaurado y consolidado en diversas ocasiones, por lo que, entre otras cosas, actualmente todos sus muros lucen al interior su aparato constructivo — exceptuando las bóvedas de las naves y algunos puntos del coro, el nártex y las capillas laterales, generalmente cubiertos por un revoque claro.

Las modificaciones también se evidencian a occidente, donde la fachada principal de la iglesia presenta una puerta de entrada enmarcada con tracería clasicista, lechada en el dintel en 1737 —y, en cuyo interior, todavía se adivinan los vestigios de la pretérita puerta—, culminada por un sencillo rosetón de la misma factura. Culmina la composición de la fachada una renovada y monumental espadaña, consolidada por un tejado a doble vertiente y abierta mediante dos pares de vanos para las campanas, de tamaño distinto, los centrales de mayor tamaño. El sector derecho del frontis presenta un acabado irregular y queda truncado a media altura, ya que se desestimó su integración cuando se renovó la espadaña. Por ese motivo, actualmente se perciben los restos de la escalera de piedra de acceso a ésta, situadas en su tramo más meridional. A ambos lados de la fachada se abren dos aspilleras coronadas por pequeños arcos monolíticos, y en los extremos del muro los rastros de sendas lesenas angulares, que nacen de un engrosamiento algo irregular de la zona inferior del muro. Los cambios e irregularidades en el paramento permiten intuir la dimensión y el formato de la fachada primitiva, que debió ser notable.
A medida que se avanza hacia oriente, el aparato constructivo exterior de la iglesia aparece articulado con los elementos característicos del primer románico meridional.
Esta decoración asoma por los muros laterales, por encima de capillas laterales y sacristía, en series de cuatro arquillos ciegos —que descansan sobre ménsulas austeras y sobre los que transcurre una cornisa biselada— separados por lesenas, sobre la sacristía adosada al Sur, una gran ventana abocinada, en arco de medio punto, se abrió posteriormente en medio de uno de los grupos de arcuaciones.
El mismo tipo de decoración se desarrolla en la cabecera, que consiste en un ábside principal de cierta profundidad flanqueado por dos pequeños absidiolos, todos de perfil semicircular y apoyados en un zócalo. El esquema decorativo varía ligeramente. en el absidiolo norte hay una moldura seguida de seis arquillos ciegos dispuestos entre dos lesenas marginales, en el meridional, el muro queda partido en dos tramos por una lesena central, con tres arcuaciones ciegas por costado (En la base del muro donde se dispone la serie de tres arquillos hay el arranque de otra lesena que, junto con la mayor luz del arquillo central, evidencia un cierto cambio en el planteamiento decorativo). En el muro central de ambas absidiolas se abre una estrecha ventana de arco monolítico.
Por su parte, el friso del hemiciclo central está distribuido en tres series de cuatro arquillos ciegos, apoyados sobre sobrias ménsulas (una de las cuales, en el centro, presenta una decoración lineal muy erosionada, a base de incisiones) y comprendidos entre lesenas, las dos centrales van coronadas por pequeñas impostas, una de ellas —parcialmente quebrada— decorada con una cenefa de esquemáticas hojas lanceoladas.
En la parte inferior de la misma faja se emplaza una piedra inscrita con unos caracteres muy desgastados (como sucede con otros dos de la banda del lado norte, casi imperceptibles), suponiéndose su naturaleza íbera y procedentes del colindante poblado del Puig de Sant Andreu. Tres ventanas de arco de medio punto abocinadas —de derrame simple al interior—, marcadas con pequeñas dovelas, dan luz al presbiterio interior, situándose cada una en cada grupo de arcuaciones del ábside. Encima de éste y de los absidiolos discurre una cornisa biselada sobre la que se postran los tejados cónicos, debidamente consolidados; bajo ellos todavía se pueden distinguir los vestigios de las losas que cubrían la fábrica.
El resto de la iglesia va resguardado por un tejado a dos aguas, desde el que sobresalen los aleros que cubren los añadidos posteriores. En el hastial oriental de la nave central, se abre un pequeño óculo y sobre éste se alza un moderno esconjuradero turriforme, de planta cuadrangular y tejado a cuatro vientos cuya puerta de entrada fecha de 1621; se accede mediante un paso pavimentado que transcurre por la divisoria de aguas de la cubierta del templo, y en cuyo acceso aparece un escalón realizado a parte una imposta de caveto reutilizada.

Al interior, se percibe la desproporción entre el ábside y las pequeñas absidiolas laterales, aunque los tres elementos comparten una línea de imposta —biselada la del hemiciclo central y de nacela la de los laterales— que separa el paramento vertical de la bóveda semicircular. El ábside mayor incluye un corto tramo presbiterial recto, que se abre mediante un arco triunfal de medio punto cuyas pilastras coronan las correspondientes impostas. La misma solución presentan los ábsides laterales, abriéndose los tres módulos a sus naves pertinentes. Estas van cubiertas por bóvedas de cañón, sustentadas por dos arcos Sajones de semejante morfología (el arco fajón más occidental de la nave Sur, presenta una deformación que rompe con el medio punto) y descansando a su vez sobre pilastras, exceptuando los de la nave principal, que, debido a las reformas modernas, se apoyan sobre impostas y pilastras seccionadas a modo de ménsulas. una línea de imposta biselada recorre los muros laterales, que convergen ligeramente hacia la cabecera. mientras que la nave central es de planta rectangular, las colaterales se estrechan a medida que se avanza hacia el Este, de modo que la planta del edificio es, en realidad, de tendencia trapezoidal.
Originalmente, las naves se comunicaban entre sí mediante tres arcos formeros de medio punto Que apeaban sobre pilares cruciformes, de los que también arrancaban los Sajones. Sin embargo, en una de las reformas acometidas entre los siglos XVI y XVIII, además de construirse, como se ha dicho, las capillas laterales (tres en el lado del Evangelio, dos en el de la Epístola) se abrió una gran arcada rebajada por lado, cuya amplitud eliminó los arcos originales más próximos a la cabecera (quedan algunos vestigios); los arcos del sector occidental quedan parcialmente tapados, hoy, por el coro elevado, también vinculado a las reformas modernas.
La mayor parte de la fábrica de la iglesia dispone de un aparejo constructivo a base de sillería de arenisca, de morfología algo diversa, generalmente escuadrada, unida entre sí con mortero de cal formando hiladas regulares. Las bóvedas se cimentaron con simples losas pequeñas, mayormente colocadas de forma longitudinal, en las naves, y en ristras concéntricas en las cúpulas absidiales. Por sus características constructivas, Sant Pere de Ullastret puede clasificarse en la tipología de iglesias de planta basilical de la primera mitad del siglo XI o mediados del mismo. La combinación de las fórmulas del primer románico meridional con ciertos elementos de la tradición local anterior, de base tardocarolíngia, proporcionan al edificio un carácter distintivo, observándose algunas particularidades poco frecuentes en la arquitectura catalana del siglo XI. En este sentido, la iglesia de Ullastret puede equipararse con otras edificaciones religiosas de la época, tanto en el Empordá como en las comarcas septentrionales (hoy francesas) del Rosselló y el Vallespir. Guarda relación, por ejemplo, con Sant Quirze de Colera, Sant Joan de Palau saverdera, Sant Miguel de Fluviá o Santa Maria de Cerviá (Gironés), entre otras.

Conjunto de impostas y sillares esculpidos
La iglesia de Ullastret contiene un curioso conjunto de sillares decorados, mayormente impostas, encastados en los muros del interior. Se trata de una serie de piezas esculpidas en un relieve bajo, con una interesante variedad ornamental, que se distribuyen algo irregularmente en las naves, sobre todo en el sector occidental, que incluye el espacio ocupado por el moderno coro. hay dos tipos distintos de relieves: los decorados con motivos estrictamente ornamentales, de tipo geométrico o vegetal, y los que contienen elementos figurativos tanto de tipo zoomorfo como antropomorfo, que se sitúan en la mencionada zona del coro, es decir en el extremo oeste de la iglesia.
Una primera serie de impostas se sitúan a los pies de la nave. En la pilastra situada en el primer arco formero del lado sur, una primera imposta muestra, en su cara frontal e inferior, un relieve de espacios cuadrangulares donde se alternan cruces en aspa —formadas por dos cintas cruzadas— con motivos estriados. hay dos impostas en el pilar de sustentación del arco fajón occidental de la nave sur, una con entrelazos y otra con un ajedrezado. Otra imposta más, en el arco formero occidental de los pies de la nave norte, dispone de sencillas molduras resaltadas horizontalmente, mientras que su compañera de enfrente ostenta un opulento relieve frisado fitiforme, cuyos tallos y ramificaciones acabadas en hojas y volutas ocupan todo el espacio del bisel, en tanto que en el filo superior muestra un bajorrelieve ondulante.
Asimismo, se hallan algunos sillares ornamentados en diversos lugares del templo, aparentemente dispuestos de manera descontextualizada o sin intención. En el exterior destacan dos bloques rectangulares, colocados, uno encima del otro, en el muro sur (que corresponde a la capilla latera occidental). El superior, enmarcado por una fina moldura perimetral, contiene un friso en relieve de seis ondas o meandros tallados en una franja de gres de pigmentación carmesí. El inferior, de material arenoso, es decorado por una cenefa formada por dos cordones planos y ondulantes, enlazados de manera horizontal para formar una serpentina o trenzado.
Un motivo similar, pero de factura más delicada, aparece en un sillar del interior de la iglesia, encastado en el intradós del pilar occidental del arco formero del lado del Evangelio, en su superficie se esculpe un cordón liso sinuoso, que se entrelaza horizontalmente, formando una cenefa o trenzado de una sola soga En el sector de la nave principal del mismo arco surge, entre el paramento próximo a las dovelas, un pequeño fragmento de piedra con una decoración incisa aparentemente ovulada, como si de una serpiente enroscada se tratase.
En el intradós del arco fajón situado en el extremo oeste de la nave principal (junto al coro) se dispone el conjunto de piezas con relieves figurados. Son cuatro sillares dispuestos y tallados a modo de imposta de nacela, con sendos relieves cuya temática, según algunos autores, ofrece con un discurso iconográfico en común. Así pues, dicho arco descansa parcialmente sobre unas impostas —por banda— en cuyo lado aparecen otras de características similares, pero de mayores dimensiones y más sobresalientes, que ayudan a las anteriores a sustentar una parte de la arcada. Es posible que ésta irregularidad posicional se deba a la intención de representar la temática esculpida, como si se hubiese forzado la situación de las impostas para contextualizar arquitectónicamente la iconografía. Asimismo, se produce una curiosa anomalía constructiva en dicha zona, ya que el arco fajón aparece desplazado de sus correspondientes pilastras, visiblemente eliminadas del muro —tal vez durante las reformas modernas vinculadas a la erección del coro— y de las que restan algunos vestigios que surgen de las impostas.
En el conjunto del lado del Evangelio, la imposta más occidental presenta un relieve zoomorfo de un león o felino yaciente. De cabeza redonda y desproporcionadamente pequeña, tiene los ojos y la boca incisos, mientras que la nariz aparece en relieve, como si de una máscara antropomorfa se tratase. El resto de atributos —pezuñas, crin y demás pelo, y el perfil de los cuartos delanteros— está configurado a base de austeros trazados incisos, bien marcados.
En la imposta pequeña situada inmediatamente a su lado, aparece una faz antropomorfa en la que son visibles también los brazos, que surgen de la parte superior de ésta y que sustentan un instrumento musical (un aulós o un caramillo, evolución medieval del primero). La visión frontal de la figura hace que desde la boca salga el instrumento, que se bifurca sustentando cada cuerno con una mano, situada en el extremo. Continúa siendo patente la simplicidad y el esquematismo de la imagen, que ostenta unos atributos faciales de cierto relieve.
En el lado Epístola, la imposta mayor está dotada de un austero relieve con la representación de dos sirenas-pez andróginas o hermafroditas, vistas en perspectiva frontal, con las colas curvadas diagonalmente y llevadas hacia la parte superior central de la composición, a la altura de sus cabezas. Los brazos y las cabezas de las criaturas tocan el resalte superior de la imposta, en acción de sustentar la, o puede que representando algún tipo de movimiento. Las testas son masculinas y alargadas, presentan cierta alopecia, y su fisonomía se resuelve, parcialmente detallada, en ojos y cejas prominentes, y nariz y boca pequeñas. Asimismo, están definidas las manos que, aunque rudas, llegan a visualizarse los detalles de algunas de sus uñas. La morfología plana de sus cuerpos y la textura lisa de la cola, que finaliza en una aleta triangular contrasta con la representación de los pechos, efectuados mediante unas incisiones que dibujan, en la figura de la derecha, unos senos grandes y caídos, mientras que la de la izquierda los exhibe pequeños y circulares; ello debe corresponder a la figuración de una sirena vieja y una sirena joven, respectivamente. En la pequeña imposta yuxtapuesta a la anterior, en perspectiva frontal, aparece un ave con las alas extendidas. En las zonas correspondientes al plumaje del animal, la piedra ha sido debidamente tallada con tal de representar su textura a base de un tupido trazo geométrico. El animal debe identificarse con una paloma o, más probablemente, con un águila, que quizás aparece como emblema cristológico.
No queda claro si la particular disposición, en Ullastret, del conjunto de esculturas, deriva de las reformas que ha sufrido el templo. La historiografía ha planteado la posibilidad de la existencia de una portada primitiva, luego desaparecida, cuyos elementos se habrían reinstalado luego en el interior de la iglesia, lo que explicaría la curiosa distribución. Aun así, es cierto que la decoración de arcos Sajones y formeros próximos a la entrada no es infrecuente en el románico, siguiendo la idea profiláctica de marcar el paso de los fieles terrenales hacia el lugar sagrado, hay un ejemplo cercano en la iglesia altoampurdanesa de Miquel de Fluviá. De hecho, la colocación actual de las piezas figurativas permite reconocer un mensaje iconográfico conjunto. En opinión, por lo menos, de J. Badía i Homs, las impostas —leídas en el mismo orden en que se han descrito— refieren a una señal redentora destinada a los fieles, en la que se expresa la protección divina.
Cabe señalar, des de una óptica más general, que la presencia de escultura arquitectónica es frecuente en la franja nororiental de Cataluña durante el siglo XI, con ejemplos notorios en Sant Andreu de Sureda, Santa Maria d'Arles, Sant Pere de Rodes, o Sant Miquel de Fluviá; en cambio, en el resto del territorio catalán dichas manifestaciones son escasas hasta bien entrado el siglo XII. Los relieves de Sant Pere de Ullastret se han vinculado, en particular, a una influencia rosellonesa, comparándolos con la primitiva escultura de la abadía benedictina de Sant Martí del Canigó, fechada en las primeras décadas del siglo XI.

Lipsanoteca
Desde mediados del año 1979, el Museu d'Art de Girona contiene una lipsanoteca procedente de la iglesia de Sant Pere de Ullastret (MDC0054). Se trata de una doble pieza ovoide de madera pulida, con caras torneadas y de sección cilíndrica disminuida en los lados, cuya cónica tapa contiene un pequeño pomo torneado. El conjunto presenta unas dimensiones de 10 cm de alto y 58 de diámetro. El recipiente, de morfología abombada similar a la de una bota o barril, muestra un sutil ornamento a base de finas incisiones que siguen la sección circular de su diámetro —dotándolo de cierto perfil escalonado—, combinando diversos niveles de relieve, mientras en su base aparecen un par de surcos más compactos a modo de zocolada. La tapa, de forma cupular —con una cierta irregularidad—, culmina con un pequeño pomo parcialmente mutilado, y sigue la línea decorativa del recipiente. La unión se lleva a cabo mediante un encaje efectuado en la tapa para su adaptación a la boca del receptáculo.
Por sus características y simplicidad, la pieza ha sido fechada en un margen cronológico entre el siglo XI y XII, aunque la falta de documentación y de reliquias hace difícil precisar el momento de su colocación, sea donde fuere.

 

Bellcaire D'Empordá
El municipio de Bellcaire d'Empordá forma parte de la comarca del Baix Empordá, provincia de Girona. El término municipal tiene una extensión de 13 km’ y está a 35 m de altitud. Se llega por la carretera de Verges a Torroella de Montgrí, en el cruce en dirección a l'Escala. Se halla a 6 km de este municipio, y a 44 km de la ciudad de Girona.
Los orígenes i etimología del topónimo del lugar, según la teoría defendida por el lingüista P. Pericay y el arqueólogo J. Maluquer de Motes, está en el nombre prerromano Belbitinco, que aparece en una inscripción del siglo IV a.C., en alfabeto ibérico, sobre una cerámica, un rython, hablada en Ullastret (importante ciudad ibérica cercana). Este nombre, según esta teoría, es un antecedente del topónimo Bedenga que aparece en los documentos medievales para indicar esta población.
La arqueología ha puesto a la luz, en el término municipal de Bellcaire, diversos yacimientos de época neolítica, ibérica y romana. Como el poblado ibérico del Puig o Can Gusó, con restos desde la época neolítica, hasta una villa romana del Bajo lmperio.
Las primeras citas documentales del municipio corresponden al siglo IX. Aparece documentado a partir de 881 en un litigio de tierras, y a lo largo del documento aparece con variantes de grafía como Bedenga, Bitinga, Quarto quae vocatur Bitinga. Jaime Villanueva cita la Notitia judicati pro ecclesia Gerunden anno DCCCLXXXI. “Iste Andreas eas retinet ad aprisione pro partibus de villa quae dicitur quamque vocant Bedenga… iste Stremirus presbiter quod est mandatarius supradicto. Episcopo requiret, non eos teneo injuste set per legis ordine eos te neo, per aprisione et per praeceptum Regis et pro partibus de supradicti villa Bitinga, sicut ceteri Hispani faciunt… Et tum ordinaverunt jam dictus Episcopus, Comites vel Judices ut intra ipsas villas Uliano et quarto quae vocatur Bitinga fixuras vel terminia mitterent V petras fictas, sicuti et fecerunt”.

Sant Joan de Bellcaire
El primer documento de la iglesia de Sant Joan es de 1002, en una bula del papa Silvestre II, y dice de la iglesia de Sancti Iohannis quae est in Bedenga, que confirma su pertenencia a la Seo de Girona. En 1182 los derechos sobre la iglesia de Sant Joan de Bidinga se confirman a la canónica agustiniana de Santa Maria de Ullà.
A fines del siglo XIII, el conde Ponç Hug IV de Empúries construye la fortaleza, castillo-palacio de Bellcaire, construido en Bedenga, que se convertirá en residencia frecuente del conde. (Después formó parte de la baronía de Verges, que dependía de los vizcondes de Rocabertí desde 1418, más tarde pasó a la familia de los Cardona. En 1587 se incorporó a la corona.) La sala más importante del castillo (obra de ca. 1300) se convierte en iglesia parroquial bajo la advocación también de san Juan, y la antigua iglesia se convierte en la capilla del cementerio, estamos posiblemente en el siglo XVII.
Posteriormente, a mediados del siglo XX, se construyó el nuevo cementerio, y la vieja iglesia de Sant Joan perdió su función.
Fue a principios de los años 60 del siglo pasado cuando aparece la preocupación por parte de la Diputación de Girona por el deterioro que sufre la iglesia. Pero fue en 1984 cuando finalizaron las obras de restauración, por parte del arquitecto de dicho organismo Joan M. de Ribot. Desde entonces la vieja iglesia comparte la función parroquial con la iglesia del castillo. 
La iglesia de Sant Joan posee actualmente planta basilical de tres naves, con transepto que no sobresale del perímetro de las naves, la nave central es más alta que las laterales. La cabecera está formada por un ábside semicircular, precedido de un corto espacio presbiteral. El edificio responde a varias etapas constructivas. el transepto y las tres naves son anteriores al románico; la cabecera absidial es románica del siglo XI; la puerta de entrada y la espadaña son ya de época gótica.
La nave central está cubierta por bóveda de cañón seguido, ligeramente ultrapasada, y las laterales están cubiertas con bóvedas de cuarto de círculo. Dos arcos formeros a cada lado comunican las naves laterales con la central, estos descansan sobre pilares rectangulares y parece que responden a arcos de herradura, Que posiblemente fueron restaurados por su mal estado de conservación. Los brazos del transepto, de planta ligeramente trapezoidal, están cubiertos con bóvedas de cañón, realizadas posiblemente cuando se construyó la cabecera en época románica.
En las naves laterales aparecen dos puertas típicamente prerrománicas: arcos de medio punto sobre pilares muy avanzados.
El transepto fue construido con anterioridad a las naves. En el espacio presbiteral aparecen dos ventanas, y otras dos en el ábside. Estas ventanas son de doble derrame. En el exterior del ábside románico, bajo la cubierta, aparecen las bandas lombardas que agrupan en la parte superior tres grupos de ventanas ciegas en número de cuatro, separadas por lesenas. En el lado norte, en la cabecera, aparecen restos de un ábside lateral que corresponde a la antigua estructura triabsidal prerrománica.
En el exterior del muro norte aparece un fragmento de construcción en espiga de pez. Incorporado en el muro sur, cercano al ábside románico, aparece un fragmento de una pequeña columna estriada de época romana. En la fachada oeste se halla un osario gótico, fechado en 1 326 por una inscripción fúnebre que explica que se halla enterrado un personaje llamado Bartomeu Duran de Torre de Muguet.

Vista general

Ábside

Ábside

Ventana e imposta fachada oocidental 

Las obras de restauración y estudios arqueológicos posteriores realizados por J M Nolla, F. Aicart y L Palahí (2008) han puesto al descubierto la estructura antigua Ello ha determinado que se realizara un nuevo pavimento en la iglesia, con una parte de madera que permite la abertura para la visita.
En el subsuelo de la nave central actual se conservan los restos de una aula rectangular que permite que primero podamos hablar de una celia memoriae dedicada a un personaje importante de fines del siglo V o inicios del VI bajo la zona presbiterial actual aparecen los cimientos del antiguo ábside central de forma rectangular, un poco trapezoidal, que se añadió a esta aula rectangular, ya entre los siglos VII y VIII. La cella se convierte así en iglesia, a la que se añadirá posteriormente un crucero en el siglo VIII Tendremos pues una iglesia de planta cruciforme de una nave y transepto, con ábside rectangular.
Ya en época prerrománica, en el siglo IX, se construye una iglesia de tres naves que conserva el transepto de la iglesia anterior, la nave central cubierta con vuelta de cañón y las laterales de cuarto de bóveda, incluyendo el transepto dentro de las naves Se conserva de esta época una absidiola de planta semicircular ligeramente de herradura, en el lado norte del ábside rectangular actual románico.
Ello nos lleva a la estructura prerrománica de tres naves con ábside central rectangular y absidiolas semicirculares En el s XI se construye el nuevo ábside semicircular románico que engloba la cabecera anterior Estamos pues ante una de las iglesias que ejemplifican la continuidad en la arquitectura en Cataluña desde la tardo antigüedad hasta el siglo IX y X, para pasar al arte románico.
En las actuaciones de 1960 se encontró una primitiva ara de altar con cinco cruces incisas en su superficie Y durante la restauración de 1980 se descubrieron alrededor de la iglesia un conjunto de tumbas Que, por su tipología, pueden fecharse entre fines del siglo IX y fines del siglo XII No se conservan actualmente.

Pintura mural
En una primera restauración, entre 1927 y 1931, del Servicio de Conservación de Monumentos de la Diputación de Girona, se retiró el retablo barroco del altar y se hallaron las pinturas románicas En torno a 1948 se arrancaron las pinturas murales del ábside, que se hallaba en muy mal estado de conservación, con una amplia grieta que destruyó gran parte de las pinturas en el lado norte Las pinturas se restauraron de manera excesiva, con repintes, y se realizaron partes de las figuras de nuevo; se situaron en plafones planos ingresaron en el Museo Diocesano de Girona (núm. 3 del inventario del museo) El 17 abril de 1979 entraron en el nuevo Museu d'Art de Girona, donde tienen el núm.1.3 del inventario Tienen las dimensiones siguientes 257 x 180 cm.
Otros fragmentos de estas pinturas, unos plafones cuya superficie total es de 153 x 104 cm y que representan las figuras de dos apóstoles, se conservan en la colección particular de Antoni Batlló de Barcelona, según J. Ainaud (1967).
En su situación actual en el Museo, en el muro cilíndrico del ábside aparecen cuatro figuras de apóstoles centradas, no teniendo en cuenta las dos que pertenecen a la colección particular, y están agrupadas dos a dos. De la misma forma en la semicúpula aparecen dos figuras de la Trinidad: el Espíritu Santo y una figura entronizada que puede representar a Cristo; si bien J. Sureda propone que es la figura de Dios Padre. De hecho, no se distingue que el nimbo sea crucífero. Comparándolo con la fotografía anterior al arranque, en el museo las dos figuras de la zona superior parecen desplazadas. Sobre las cabezas de los apóstoles aparecen lenguas de fuego que proceden de la paloma que representa el Espíritu Santo.
Los apóstoles se sitúan sobre unas bandas paralelas de colores rojizo, verde y azul.
Separa el registro cilíndrico de los apóstoles (eran seis con el fragmento de la colección particular) de la semicúpula, una franja amarilla que es atravesada por las lenguas de fuego que se dirigen sobre la cabeza de cada apóstol Estos van nimbados y la lengua de fuego atraviesa el nimbo; llevan túnica y manto, y aparecen conversando en parejas.
Centra la composición, en la parte de la semicúpula, la figura entronizada de Dios en Majestad o de Cristo, y a su derecha aparece la paloma también nimbada, con las alas abiertas y dirigiéndose hacia los apóstoles. 1. Lorés (2008) cita la representación del Espiritu Santo en una miniatura de mediados del siglo XII, en el breviario de Saint Pierre de Montiéramey (BNF, ms. Lat. 796, f. 182). En las figuras predomina la línea sobre el color, con trazos muy marcados en los ojos, boca, y nariz. Pero son pocos los fragmentos originales que se conservan sin la intervención de la restauración; posiblemente solo una de las figuras mantiene su originalidad.
El tema representado no es habitual en la pintura románica, ni en la catalana, y representa la venida del Espíritu Santo el día de Pentecostés (Actas de los Apóstoles, 2,1 - 12). “Les aparecieron unas lenguas como de fuego, que se separaron y se pusieron sobre cada uno de ellos. Todos fueron entonces llenos del Espíritu Santo, y comenzaron a hablar en otras lenguas…)”. El fuego en forma de lenguas indica la misión de predicar, y el tema explica el inicio de la expansión de la iglesia. También podemos hallar las fuentes de este tema en los Evangelios de san Juan y san Mateo.
En la zona de la semicúpula del ábside debería aparecer una tercera figura que formaría la Trinidad. Completarían el tema las figuras de los otros apóstoles i, alguna vez puede aparecer la figura de María, situada normalmente en el centro de la composición, entre los apóstoles.
La identificación del tema se debe a C. R. Post en el año 1934. Este tema nada habitual en la pintura románica catalana, ha hallado según la historiografía una relación temática, que no iconográfica, pues son dos temas distintos, con las pinturas del ábside lateral del lado del Evangelio de la iglesia de Sant Quirze de Pedret (MNAC) fechados a fines del siglo XI por J. Pijoan y J Gudiol (1948). Aquí se representa la Misión de los Apóstoles (Evangelio de Mateo, 28, 19) o el colegio apostólico presidido por Pedro.
El tema de Pentecostés aparece en pocos conjuntos de pintura mural. I. Lorés, en 1995, pone como paralelo del tema las pinturas de la iglesia funeraria de Idensen, en la Baja Sajonia, donde el tema de Pentecostés aparece representado en la bóveda de la nave; estamos en el primer tercio del siglo XII. El tema indiscutiblemente es raro en la pintura mural, no así en la miniatura, lo que hace difícil trasladar a lo monumental una pintura concebida para ilustrar un manuscrito o bien una tabla de altar. M. Durliat (1974) define dos ábsides en la pintura mural románica catalana dedicados al Espíritu Santo, cuando la mayoría lo están al Cristo de la Parousia, y otros en menor número a la Madre de Dios, son los de Bellcaire y el lateral norte de Pedret. De Bellcaire dice que es una de las representaciones de Pentecostés más ortodoxa, pues el Espíritu Santo procede a la vez del Padre y del Hijo. Ello se enmarca dentro del conflicto de interpretación de la procedencia del Espíritu Santo entre la iglesia occidental y la oriental.
Estilísticamente, ya desde Post, relaciona el conjunto de Bellcaire con las pinturas, también en el Empordà, de Sant Esteve de Marenyà. Y con ellas la historiografía las sitúa con el grupo de conjuntos de la comarca de Osona, Sant Martí del Brull y Sant Sadurní d'Osormort (Gudiol i Cunill, Kuhn). Ello hace, siguiendo la historiografía (Cook, Gudiol Ricart), que se defina el Maestro de Osormort como el pintor de estos conjuntos.
En 1972, Joaquim Dols plantea metodológicamente el estudio filológico formal del Maestro de Osormort y los conjuntos con él relacionados, para llegar a la conclusión de la existencia de diversos maestros y talleres. Desde un punto de vista historiográfico, a partir de este momento será difícil que se hable de maestros con muchas obras adscritas, y se pueda hablar de círculos, talleres, corrientes.
Buscando un origen estilístico común, parece clara la relación de estos conjuntos de pintura mural con la pintura románica del Poitou, concretamente con las corrientes que tienen como punto de partida el conjunto monumental de Saint-Savin-sur-Gartempe, y más las pinturas de la cripta. Estilísticamente, tanto el pintor de Saint Savin como el de Osormort se han relacionado con la miniatura del manuscrito de la Vita de Sanctae Radegondis (Bibliothèque Municipale de Poitiers, ms. Nº 250), fechado en el siglo XI.
También influyen las pinturas murales de la iglesia de la Trinité de Vendôme, en la Turena, de hacia 1100, según N. de Dalmases y A. José (1986). Es la relación estilística que une todos estos conjuntos formando parte de la influencia francesa que entra a principios del siglo XII en Catalunya, en paralelo a la corriente italiana, lombarda principalmente, que a fines del siglo XI generaran otros conjuntos de la pintura mural románica en Cataluña.
Dentro de esta corriente de influencia francesa se han relacionado los frescos de la iglesia de los Santos Julián y Basilisa de Bagües (Museo Diocesano de Jaca), Sant Pere de Navata, y un fragmento de las pinturas del transepto de Sant Miguel de Crui'lles. La influencia de Saint-Savin-sur-Gartempe sobre las pinturas de Bagüés son directas según C. M. Borrás y M. García Cuatas (1978). Esta relación de la pintura del Poitou con Cataluña y Aragón, y su itinerancia, la ha estudiado C. Fernández Somoza (2004).
Para el caso de las pinturas de Bellcaire la cronología ha oscilado según la historiografía. Cook y Gudiol fijaban la cronología en torno a 1175, dentro de las actividades del maestro de Osormort. Siguieron esta cronología. Alcolea, Girlot, Cook, Gudiol, Michel y Demus. Joan Ainaud las relacionaba con las pinturas de Navata, y las llevó cronológicamente al siglo XI; Joan Sureda, partiendo de la cronología de Saint Savin en torno a principios del siglo XII, fijó las pinturas catalanas que se relacionan en el segundo cuarto del siglo XII. Esta última fecha nos parece más adecuada para Bellcaire, a pesar de la restauración excesiva del conjunto.
Quizás, en la relación estilística de las pinturas de Bellcaire y estos conjuntos, sean más claras con las pinturas de Sant Esteve de Marenyà, con la lapidación del santo, la Crucifixión y otras escenas de la vida de Cristo, y también con las del transepto de Sant Miguel de Cruilles, con la escena de la traición de judas, dentro de un grupo del Empordá que trabaja bajo la influencia de la pintura francesa de la región del Poitou.

Otros edificios de interés
Además de los edificios en los que nos hemos detenido, conserva la comarca del Baix Empordà una amplísima nómina de pequeñas construcciones religiosas rurales de origen románico: de ellas, son dignas de ser destacadas las de Santa María de La Tallada, la de Sant Pere de Palau-Sator y la de Sant Feliu de Parlavà; todas ellas con el común denominador de presentar un aspecto fortificado y defensivo.
La parroquia de Sant Genìs de Casavells sobresale también por su magnífico campanario, equiparable con los referidos en Romanyà de la Selva y Canapost.
En la iglesia de Sant Llorenç de Les Arenes se aprecian vestigios de su primitiva construcción prerrománica, mientras que se conservan distintos restos más o menos fragmentarios de cronología altomedieval en edificios como Sant Martì de Cassà de Pelràs, Sant Joan de Matajudaica, Santa Cristina de Corçà, Sant Genìs de Monells, Sant Joan de Salelles, Sant Cugat d'Albons, Sant Esteve d'Esclanyà, Sant Martí de Fontanilles, Santa Coloma de Fitor, Sant Climent de Tor o Sant Esteve de Peratallada.
Numerosos son también a lo largo y ancho del Baix Empordà los ejemplos de castillos o torres fortificadas erigidas durante los siglos medievales, para cuya construcción, en algunos casos, fueron aprovechadas las propias iglesias parroquiales. El castillo más señero de cuantos han llegado a nuestros días en tierras bajoampurdanesas es sin duda el de Torroella de Montrgí, siendo también destacables las fortificaciones y los conjuntos medievales de Pals, Begur, Monells, Calonge, y, por supuesto, el magnífico castillo-palacio de La Bisbal d'Empordá: uno de los escasos restos de románico civil conservados en la comarca.

 

Próximo Capítulo:  Románico en las comarcas de Ripollès- Monasterio de Ripoll

 

 

 

Bibliografía
Ainaud de Lasarte, Joan, Pintura románica catalana, Barcelona, 1962.
Ainaud de Lasarte, Joan, La Pintura románica, Barcelona, 1967.
AINAUD DE LASARTE, Joan, La pintura catalana. La fascinació del románic, Barcelona-Ginebra, 1989.
AMENCOS i MARTÍNEZ, LluÏsa, "La reixeria romanica catalana”, Quadems del MEV, 4 (201 O), pp.  31-48.
BADIA i HOMS, Joan, L’arquitectura Medieval   de l’Empordà, Girona, 1977- 1981, 3   tomos (J 981-1985).
BADIA i HOMS, Joan y RAMOS i MARTÍNEZ, M. L., "Sant Miquel de Cruïlles", en Catalunya Romanica, VIII, Barcelona, 1989, p. 280.
BADIA   i HOMS, Joan, "Escultura   romanica de Sant Pere d’Ullastret.   Proposta   d'interpretació", Estudis   del Baix Emparda, 27 (2008), pp. 5-24.
BASTARDES i PARERA, Rafael, Les talles romàniques del Sant Crist Catalunya, Barcelona, 1978.
BASTARDES i PARERA, Rafael, “Majestat de Cruïlles”, en Catalunya Romanica, XXIII, Barcelona, 1988, pp. 76-78.
BLANCO DE LA LAMA, Joan, El Monestir de Sant Feliu de Guíxols (segles X-XI). La formació del domini, Sant Feliu de Guíxols, 1991.
CANAL i ROQUET, Josep et alii, "El castellum Uellosos del Pug de Sant Andreu (Ullastret, Baix Emporda). Vida i mort d'una fortificació carolíngia", Estudis del Baix Emparda, 24 (2005), pp. 5-54.
CARBONELL i ESTELLER, Eduard, L'art romanic a Catahmya, Barcelona, 1974-1975, 2 tomos.
CARBONELL i ESTELLER, Eduard, La pintura mural romanica, Barcelona, 1984.
CARRERO SANTAMARÍA, Eduardo, "Imágenes litúrgicas. La viga de Sant Miquel de Cruïlles (Museu d'Art de Girona) y la dedicación de su iglesia", en ALONSO-PIMENTEL, C. y KORTADI OLANO, E., Arte y cristianismo. In memoriam de Juan Plazaola Artola, SI, San Sebastián, 2007, pp. 329-337.
CATALUNYA ROMANICA, Barcelona, 1984-1998, 27 tomos.
CERVERA I BERTA, Josep Maria, Historia del Monestir de Sant Feliu de Guíxols, Olot, 1984.
CODINA i FALCAS, Ferran y GRAU i SALVA, Joaquim, "Resultats de les primeres excavacions realitzades al castell de Palagret (Celra) entre els anys 2004 i 2005", en Vuitenes Jornades d'arqueologia de les comarques de Girona, Girona, 2006, 11, pp.  523-532.
COOK, Walter William Spencer y GUDIOL RICART, José, Pintura e imaginería románicas, Madrid, 1980 (col. Ars Hispaniae, VI, edición revisada).
COOK, Walter William Spencer, La pintura mural románica en Cataluña, Madrid, 1956.
DOLS i RUSIÑOL, Joaquim, "El maestro de Osormort", D'Ar1  (1972), pp.  12-70.
ESCUDERO, A., "Biga de Cruïlles", en Thesaums. Estudis. L'art als bisbats de Catalunya, 1000-1800, Barcelona, 1986, p.  46.
ESPAÑOL BERTRÁN, Francesca y YARZA LUACES, Joaquín, El románico catalán, Manresa, 2007.
FERNÁNDEZ SOMOZA, Gloria, "La influencia poitevina en la pintura mural románica del nordeste de España”, en Aquitaine et Espagne, du VIIIe au XIII e siecle, Poitiers, 2001, pp. 165-174.
FERNÁNDEZ SOMOZA, Gloria, “El pintor románico.  Técnicas y métodos de trabajo”, en Medieval Europe.  3rd International Conference of Medieval and La ter Archeology, Basilea, 2002, III, pp. 280-284.
FERNÁNDEZ SOMOZA, Gloria, Pintura románica en Poitou, Aragón y Cataluña: itinerancia de un estilo, Murcia, 2004.
FERNÁNDEZ SOMOZA, Gloria, ¡” Cuestiones varias sobre pintura! mural románico. Tratados, técnicas y artistas", Boletín del Museo e Instituto Camón Aznar, 95 (2005), pp. 89-124.
FERNÁNDEZ SOMOZA, Gloria, "Vías medievales y pintores itinerantes en Cataluña en tiempos del Románico”, en El Camí de Sant Jaume i Catalunya. Actes del Congrés Internacional celebrat a Barcelona, Cervera i Lleida, els dies 16, 17 i 18 d’octubre de 2003, Barcelona, 2007, pp.  387-391.
FOLCH i TORRES, Joaquim, “Les pintures murals romàniques a l’absis de l’esglesia del monestír de Sant Miquel de Cruïlles" Butlleti deis Museus dÁrt de Barcelona, 1 (1931).

1

 
FREIXAS i CAMPS, Pere, L'Art gotic a Girona, segles XIII-XV, Girona, 1983.
CISPERT i   DE FERRATER, Joaquim de, Una nota d’Arqueologia cristiana.  La indumentaria en  los crucifixs,  Barcelona, 1895.
GROS i PUJOL, M. deis S., "El Missal de Sant Ruf Tortosa, Arx. Cap., ms. 1", Miscellania litúrgica catalana, 9 (1999), pp.  199-308, p. 211.
JIMÉNEZ 1 NAVARRO, Angel, Sant Feliu de Guíxols. Una lectura historica, Sant Feliu de Guíxols, 1997.
JOLIS FEUSART, Agustín y SIMÖN DE JOLIS, Maria Antonia, Cerdanya. Andorra, Puigpedrós, Cadí, Puigmal, Carlit, Barcelona 1957.
MARQUES i PLANACUMA, Josep Maria, "Esglésies  del  Baix  Emporda",  Estudis  del Baix Emparda,  15 ( 1996), pp.  35-67.
MINGORANCE   1    RICART, Francesc-Xavier, “Sant Miquel   de   Cruilles",   en   Catalunya   Romanica,  vol   VII(   Barcelona, 1989, pp. 283-287.
MONESTIR, EL, 2010 "Monestir de Sant Feliu de Guíxols, El", lnformatiu de l’Arxiu i museu de Sant Feliu de Guíxols. Baix Emparda, 6 (1990).
PACES i PARETAS, Montserrat, "La pintura mural romanica de Catalunya, avui", Catalan Historical Review, 6 (2013), pp.   157-167.
PALAZZO, Eric, L'invention chrétienne des cinquenses dans la liturgie et l'art au Mayen Áge, París, 2014.
POST, Chandler Rathfon, A History of Spanish Painting, Cambridge, 1930-1966 (1970-1976), 14 tomos.
PUIC i CADAFALCH, Josep, "Reixa de Crui'lles", Anuari de l'Institut d'Estudis Catalans, VIII (1927-1931 ), p. 175.
PUNSETI, D. y RANESI, R., Sant Miquel de Crui’lles. Restauració de les pintures romanicogotiques, sI., 2010.
ROVIRA i PONS, Pere, "Desrestaurar para  conservar: La  restauración  y  nueva  presentación  de las  pinturas  murales  de Sant Pau de Fontclara",  Restauro, 2 (2008), pp. 24-35.
SANTIAGO FERNÁNDEZ, Javier de, La epigrafía latina medieval en los condados catalanes (815-circ. 1150), Madrid, 2003.
SUREDA i PONS, Joan, La pintura Romanica en Cataluña, Madrid, 1981 (1995).
SUREDA i PONS, Joan, "Pintura mural románica. Recientes descubrimientos en Cataluña", Gaya, 183 (1984), pp.  132- 139.
SUREDA i PONS, Joan, La pintura románica en España, Madrid,  1985.
SUTRA i VINYES, Joan, "Viga romanica policromada de Crullles", Anuari de l'Insatitut d'Estudis Catalans, VIII (1927- 1931), pp.175-177.
SUTRA   i VINYES, Joan, ‘B monestir de Sant Miquel de Cruilles", Annals   de l'Institut d’Estudis Ampordanesos,1 (1959),pp.115-142.
Thesaurus. L'art als bisbats de Catalunya 1000- l SOOl Barcelona, 1985.
TRENS i RIBAS Manuel   Las "Majestats II catalanas y su filiación iconográfica, Barcelona, 1923.
VIVO i LLORCA, Jordi (dir.) Excavacions al monestir de Sant Feliu de Guíxols. Memòries Sant Feliu de Guíxols 2010.
YLLA-CATALA i PASSOLA, Gem m a, "Biga de Sant Miquel de Cruilles", en Catalunya Romanica, vol. XXII, Barcelona, 1988, pp.   90-92.
YLLA-CATALA i PASSOLA, Gemma, "Biga de Sant Miquel de Cruilles", en Catahmya Romanica, V!II, Barcelona,  1989, pp.    287-289 pp. 74-81.
ZARAGOZA 1 PASCUAL, Ernest, Índex de l'Arxiu del Monestir de Sant Feliu de Cuíxols, Barcelona, 1992.

 

 

No hay comentarios:

Publicar un comentario